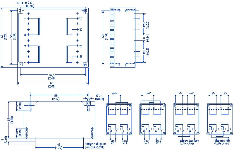
Hi, ich bin gerade dabei ein Leiterplattenlayout zu machen. Drauf soll ein era-Flachtrafo UI 39/21 Nun wird im Reicheltkatalog und im Netz bei Era persönlich nicht klar, ob da zwei Pinreihen drann sind oder nur die Pins rausgucken, die auch belegt sind. Wer hat schon mal solch einen gehabt und kann sich erinnern, wie das war? Vielleicht hat sogar schon mal einer ein Eagle-Shape dafür erstellt :) dann könnt ich mir das sparen. Viele Grüße
Hallo, ich hatte nie einen solchen Trafo. Ich würde aber die Zeichnung so interpretieren, daß da wirklich zwei komplette Stiftleisten sind. Das deckt sich dann auch mit folgender Darstellung: http://www.tauscher-transformatoren.de/html/pr_19.html Thorsten
Und auch hier: http://www.hr-diemen.com.br/brport/productos/encapsulats/index.php?command=viewFamily&id=U3921
Hi Thorsten, ich würde es auch so interpretieren und hab mich nun dazu durchgerungen, die Pins halt einzuplanen. Lieber Löcher in der Platine, als dass das Ding dann Pins hat und es sind keine Löcher da :) Die "Tauscher" Seite hatte ich nicht gefunden, nur Ansichten von Oben und Zeichnungen. Bei denen konnte man sich aber nie so sicher sein, denn bei den klassischen Trafos sind da auch Markierungen, die Pins aber fehlen... Vielen Dank
hallo Thomas, habe letztens noch einen era Flachtrafo verbaut. Da wo keine Pins gebraucht werden waren auch keine. Gruß Jürgen
Hallo Jürgen, na toll :) jetzt wo ich das Package fertig habe, kommt doch raus, dass es dort keine Pins hat. Na macht ja nix, lieber so rum, als auf die harte Tour. Besten Dank
Bitte melde dich an um einen Beitrag zu schreiben. Anmeldung ist kostenlos und dauert nur eine Minute.
Bestehender Account
Schon ein Account bei Google/GoogleMail? Keine Anmeldung erforderlich!
Mit Google-Account einloggen
Mit Google-Account einloggen
Noch kein Account? Hier anmelden.
