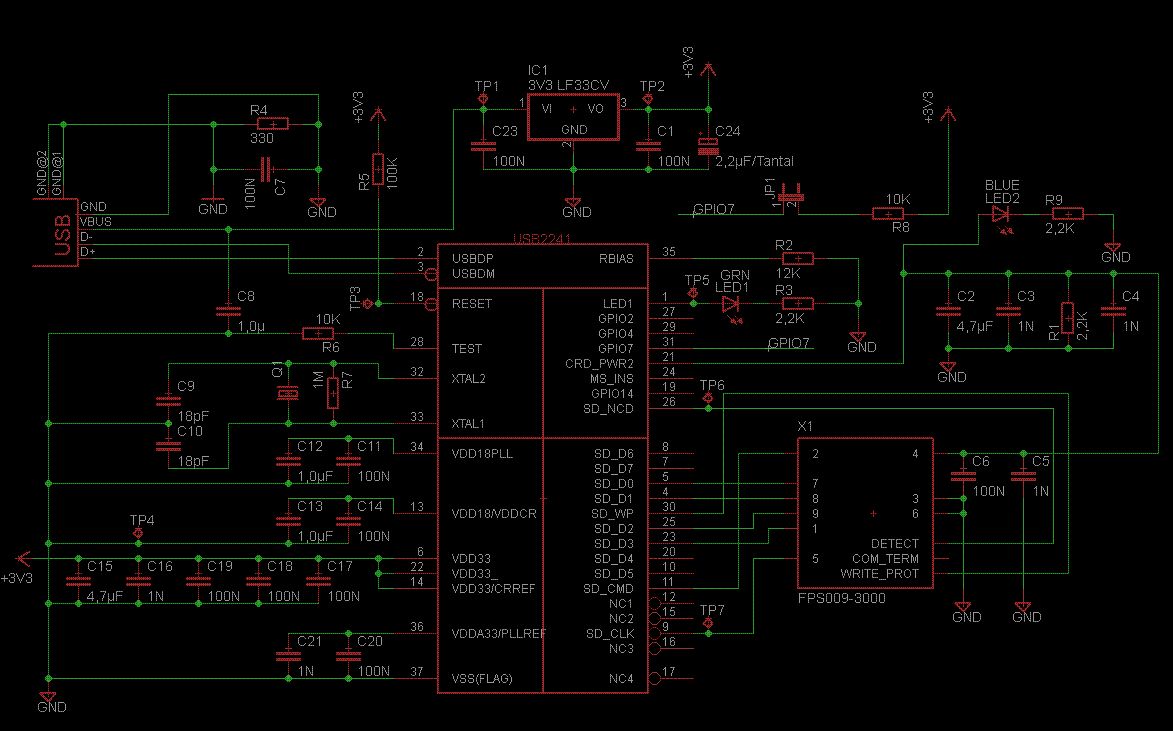
Hallo, habe die Schaltung anhand der Vorgabe des evb2240 aufgebaut. Funktioniert leider nicht. Ich will einen Zugriff über USB auf eine SD-Karte. Vielleicht findet ihr einen Fehler in meinem Stromlaufplan... Vielen Dank...
Bist Du Dir mit der Beschaltung des Quarzoszillators ganz sicher? Mir kommt der parallel zum Quarz vorgesehene Widerstand etwas merkwürdig vor.
Habe auch diesen IC verwendet. Er funktioniert bei mir auch nicht, ich habe zusätzlich, so wie es im EVB Schaltplan ist Pin 36 mit 3,3V verbunden. Bei Einstecken in den USB Port wird alles wie normal initialisiert (24MHz Quarz, 1,8V Spannung an Pin 13), schaltet dann aber merkwürdigerweise alles wieder ab. Dann bringt Windows eine Fehlermeldung. Auch unter Linux geht es nicht, dort schlägt die Enumeration des Gerätes fehl. Hat vielleicht jemand in der Zwischenzeit weiter versucht den IC zum Laufen zu bringen?
Ohne Anspruch auf Vollständigkeit: Pin36 (VDDA33) fehlt die Betriebsspannunng, bitte an 3V3 anschließen Pin18 (Reset) fehlt der Reset-Kondensator. So kann kein sauberer Power-on-Reset durchgeführt werden. Eine mit 3V3 gepowerte blaue LED (Card Power) wird wahrscheinlich nicht allzuhell leuchten? Gruß, Jörg
Bitte melde dich an um einen Beitrag zu schreiben. Anmeldung ist kostenlos und dauert nur eine Minute.
Bestehender Account
Schon ein Account bei Google/GoogleMail? Keine Anmeldung erforderlich!
Mit Google-Account einloggen
Mit Google-Account einloggen
Noch kein Account? Hier anmelden.
