Hallo zusammen, ich bin auf der Suche nach dem HX2262. Ich habe leider keinen Shop gefunden. Ich dachte nun an die Pollin Fernbedienung 870 101. Kann mir jemand sagen, ob dort ein solcher verbaut ist oder wo ich den HX2262 einzeln bekomme ? Danke
Möglicherweise ist der PT2262 kompatibel. Den gibt es bei ebay...
Danke für die Hilfe. Vielleicht komme ich später in die Verlegenheit. Derweil habe ich nochmal Glück gehabt. Pollin hat gerade wieder was preiswertes auf Basis 2262 (Art.Nr. 550 693) Grüße Matthias
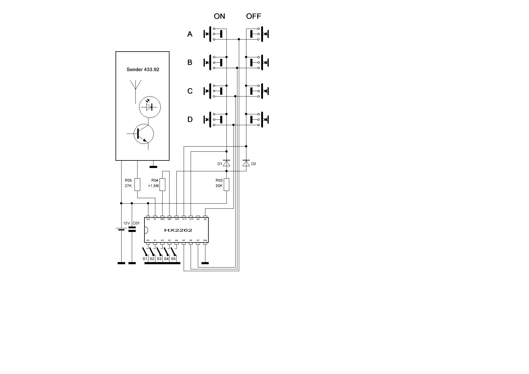
Die Fernbedienung (Pollin 550 693) benutzt intern den HX2262. Hier eine von mir gezeichnete Schaltung der FB. mfG sf1
Bitte melde dich an um einen Beitrag zu schreiben. Anmeldung ist kostenlos und dauert nur eine Minute.
Bestehender Account
Schon ein Account bei Google/GoogleMail? Keine Anmeldung erforderlich!
Mit Google-Account einloggen
Mit Google-Account einloggen
Noch kein Account? Hier anmelden.
