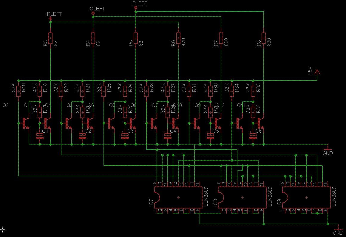
Hallo, obige Schaltung ist ein RGB Farbmischer mit Fader (Transistoren und Kondensator). Die Pins oben (RLEFTT GLEFT BLEFT) führen zu den Kathoden der RGB Led. Mit dem Darlingtion Array ULN2803, werden diese geschaltet. Wenn ich nun Spannung an den Eingängen des ULN2803 anlege, passiert gar nichts. Kann mir einer bitte weiterhlefen? Vielen Dank...
Ein ULN2803 kommt als Darlinton-Treiber nicht wiet genug mit der SPannung runter, um einen direkt mit Masse verbundenen Transistor zu unterbieten und damit auszuschalten. Auch fliessen über 80kOhm nicht geenug Basisstrom um genug Strom durch einen 82 Ohm Kollektorwiderstand fliessen zu lassen. Du darfst auch sicher sein, daß all die chinesischen Farbwechsler nicht einen dermassen gigantischen Aufwand treiben für ihr kleines Farbspiel, zumal deiner Schaltung ja noch die Ansteuerung fehlt (Johnsonzähler und Taktgeber?) Eine vernünftige Schaltung arbeitet mit einem Schmitt-Oszillator hoher Frequenz und einem Schmitt-Oszillator niedriger Frequenz und mischt die Dreiecksignale per Komparatoren zu 3 RGB Signalen. Das geht mit einem LM324.
Bitte melde dich an um einen Beitrag zu schreiben. Anmeldung ist kostenlos und dauert nur eine Minute.
Bestehender Account
Schon ein Account bei Google/GoogleMail? Keine Anmeldung erforderlich!
Mit Google-Account einloggen
Mit Google-Account einloggen
Noch kein Account? Hier anmelden.
