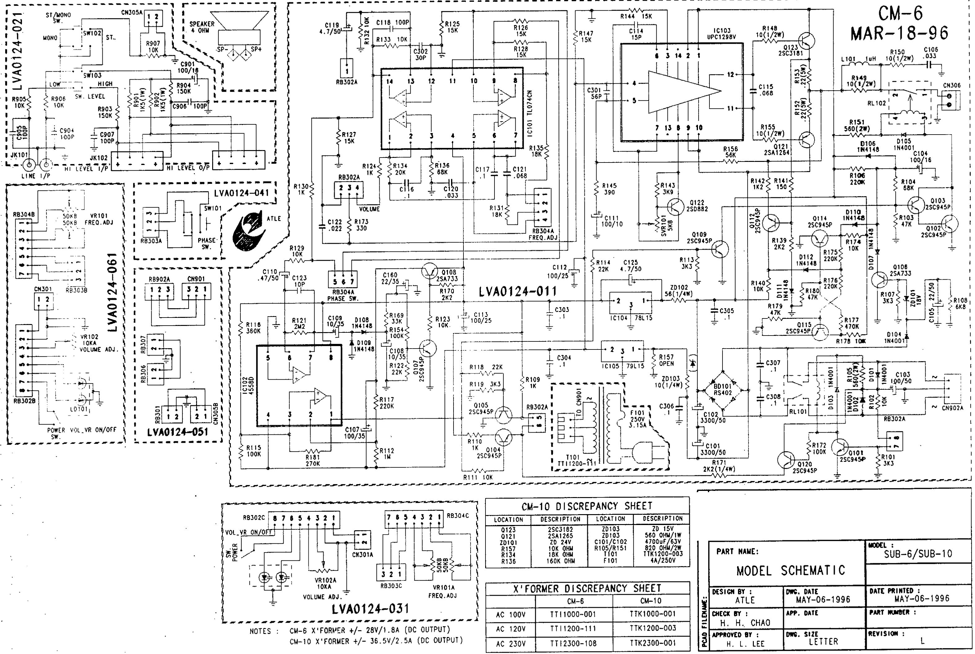
Hallo Leute, ich hab hier ein Problem mit meinen JBL Subwoofern. Irgendwann haben alle das gleiche Problem: Die Erkennung des Eingangsignals funktioniert irgendwann nicht mehr. Normale Funktion: Sub ist im Standby, kommt Musik schaltet ein Relais den Sub ein. Problem: Mit der Zeit schaltet das Relais willkürlich, auch ganz ohne angeschlossene Quelle ein und aus. Kurz vor dem Sterben (also dass er gar nicht mehr einschaltet) schaltet das Relais immer sehr schnell, klakkert. Könnte mir mal jmd einen Tipp geben wo ich in der Schaltung mal suchen müsste? Schaltplan ist anbei. Ich bedanke mich schon mal herzlich, Basti
Heija, selten so einen unübersichtlichen Schaltplan gesehen... Vor langer Zeit habe ich mal JBL-Aktivboxen repariert, da gabs bei beiden dasselbe Problem. Ich bilde mir ein ein, dass es Elkos waren. Wo, weiss ich aber nicht mehr (es sind ja immer Elkos...). Verdächtig wären C109, C108 und C160. Auch mal checken, ob nach IC104/105 an Pin 2 stabile +-15V zu messen sind. Im Prinzip sollte auch an Pin 1 von IC102 schon ein aufbereitetes Schaltsignal zu sehen sein.
Vielen Dank Georg, ich forsche mal in die Richtung. Um IC 104 und 105 sieht es warm aus...
Hast du das hinbekommen? Mein 6er hat das Problem auch... geht erst bei relativ hohen Lautstärke an...
Hey, also mein Sub 10 hat das gleiche Symptom gehabt. Ich fasse mich kurz. Beim wackeln an der Platine im Bereich des blauen Relais gab es ein Problem. Alle Lötstellen sauber nachgelötet und seither wieder alles gut. Elkos hatten noch ordentliche Kapazität.
Bitte melde dich an um einen Beitrag zu schreiben. Anmeldung ist kostenlos und dauert nur eine Minute.
Bestehender Account
Schon ein Account bei Google/GoogleMail? Keine Anmeldung erforderlich!
Mit Google-Account einloggen
Mit Google-Account einloggen
Noch kein Account? Hier anmelden.
