Hallo zusammen. Würde mich freuen wenn ein Profi meinen Schaltplan überpüfen könte, damit ich kein Bock schieße. Grüße
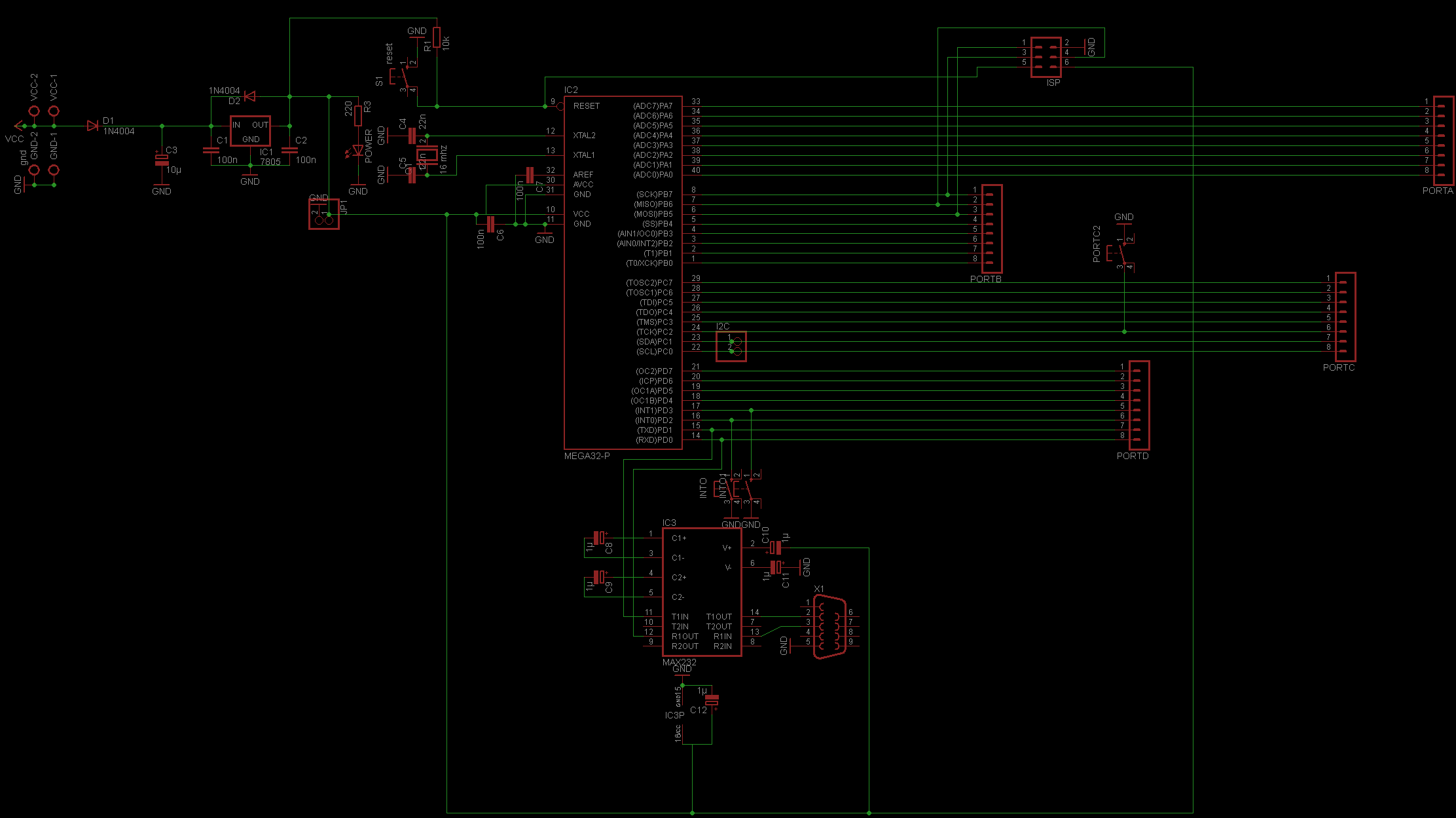
VCC und AVCC sollten je einen eigenen Kondensator haben. Und sollte der Kondensator am Spannungsreglereingang nicht 330nF haben? LG Markus
Die beiden Kondensatoren am Quarz dürfen höchsten 22pF haben, mit 22nF schwingt da gar nichts. 1µF als Ladekondensatoren am MAX sind um den Faktor 10 zu groß. In der Regel kommen da 100nF zum Einsatz. -> Im Datenblatt von Maxim nachschauen!
Nur für den Fall, dass du dich nicht einfach nur vertippt hast: Die Kondensatoren am Quarz sollten eine Kapazität von etwa 22pF und nicht 22nF haben.
Sieht ganz anständig aus. Was solls denn werden? N Demoboard? Evtl. Schutzwiderstände 1k an die Eingänge? Knut
Danke für die Antwort Werd vcc und avcc je noch einen spendieren :-) Die beschaltung des 7805 habe ich von hier: http://www.mikrocontroller.net/articles/AVR-Tutorial:_Equipment grüße
Ist der Max 232 richtig angesteuert ? Gibt Schaltpläne mit 4 und mit 2 Verbindungen zum max. grüße
Carsten Wille schrieb: > Die beiden Kondensatoren am Quarz dürfen höchsten 22pF haben, mit 22nF > > schwingt da gar nichts. Jop verschrieben :-) Knut schrieb: > Sieht ganz anständig aus. Was solls denn werden? N Demoboard? > > Evtl. Schutzwiderstände 1k an die Eingänge? Ja Demoboard will allesmögliche damit ausprobieren. Carsten Wille schrieb: > 1µF als Ladekondensatoren am MAX sind um den Faktor 10 zu groß. In der > > Regel kommen da 100nF zum Einsatz. -> Im Datenblatt von Maxim > > nachschauen! Tu mir sehr schwer mit Datenblätter aber bin mir Ihrer wichtigkkeit bewust. Wär schön wenn die öfter auf Deutsch wären :-) Hier das datenblatt des Max den ich verwende.
Sorry nicht ganz das richtige Datenblatt. Den hab ich mir bestellt. Wegen den Elcos. Grüße
Mal ne Anmerkung zu deinen Steckern für die Ports: Es macht wenig Sinn nur die Datenleitungen auf die Stecker zu legen. Also mindestens GND sollte da mit drauf. Und wenn du auch noch 5V mit drauflegst kannst du auch ein LCD anschliessen und brauchst nur EIN Flachbandkabel.
Auf der OUT-Seite des 7805 darf ruhig auch n ElKo hin ... 4,7µF oder auch nen 10µF geht da schon ganz gut.
Danke werd die Tipps in das Projekt einfliesen lassen. Die 10 Pol Wannenstecke hab ich schon hier liegen, aber noch nicht eingeplant weil ich mit dem Routen immer Probleme hatte. Irgendwie war Vcc und Gnd weit von den Wannenstecker weg :-).... Grüße Flo
Florian schrieb: > Sorry nicht ganz das richtige Datenblatt. > > Den hab ich mir bestellt. Wegen den Elcos. > > Grüße Die 1µ Elkos sind vollkommen richtig. Es gibt allerdings auch einen Typ der nur 100nF Kondis benötigt. Deshalb wahrscheinlich diese Bemerkung
Hallo! Bei einem Eval.-Board mache ich in die Leitungen zum RS232-Treiber immer Jumper. Da hat man es leichter, wenn man die RxTx-Signale mal anderweituig verwenden will (z.B RS485). Außerdem ist bei Verbindungsproblemen die Rx/Tx-Brücke schnell, auch bei gestecktem Contoller, gemacht.
ich würde evntuell die Pull-up-Widerstände an die I2C-Leitungen schon anschließen. Würde dann allerdings bedeuten, dass du diese Pins für I2C reservierst und für andere Zwecke nicht zur Verfügung hast. Also beide Pins mit 4k7 gegen 5V anschließen...
die ISP-Belegung ist total krude http://www.mikrocontroller.net/articles/AVR_In_System_Programmer#ISP ein paar per Jumper aktivierbare Leuchtdioden wären an einem Port sicher gut. mit den Tastern würde ich auch nicht sparen, diese eventuell aber auch mit Jumpern zuschaltbar machen. zB einen Halben Port Taster, die andere Hälfte LEDs, oder gleich jeweils einen Ports. Edit: vielleicht kann auch mal jemand das da korrigieren: http://www.mikrocontroller.net/articles/AVR-Tutorial:_Equipment#Selbstbau Ich bin da auch schon einmal reingefallen
Bitte melde dich an um einen Beitrag zu schreiben. Anmeldung ist kostenlos und dauert nur eine Minute.
Bestehender Account
Schon ein Account bei Google/GoogleMail? Keine Anmeldung erforderlich!
Mit Google-Account einloggen
Mit Google-Account einloggen
Noch kein Account? Hier anmelden.

