Hallo Allerseits, folgende Situation: Einfamilienhaus mit Heizkörpern im Obergeschoß und Fußbodenheizung im Erdgeschoß. Weil die Vorlauftemperatur entsprechend für die Fußbodenheizung zu hoch ist, ist im Zulauf des Fußbodenheizungsverteilers Ein "mechanischer" (wie an den Heizkörpern, Temperaturfühler ist am Verteiler befestigt) Thermostat vorgeschaltet. Zwischen dem Thermostat und dem Verteiler ist eine Umwälzpumpe eingebaut um den (ich nehme es zumindest an) hydraulischen Widerstand auszugleichen. Zu Beginn war die Umwälzpumpe fest mit 230 V Netzspannung verbunden und ist dementsprechend permanent am gelaufen. Inzwischen habe ich es getrennt und durch eine Zeitschaltuhr an die Heizzeiten der Heizungstherme angepasst. Dies ist aus meiner Sicht immer noch nicht ausreichend. Denn wenn die Temperaturregler in den drei Erdgeschoßräumen nicht schließen weil die Raumtemperatur noch OK ist und somit die Stellmotoren an den Ventilen der Fußbodenheizung nicht arbeiten (Ventil zu) läuft die Umwälzpumpe entsprechend umsonst. Deshalb habe ich mir überlegt, die Pumpe noch zusätzlich durch Schütz/Relais vom Netz zu Trennen und mir folgende Schaltung überlegt. Bitte ignoriert die "Nicht Normkonforme" Darstellung. Weil es sich um drei Räume handelt, habe ich jeweils ein Signal der vom Raumtemperaturregler zum Stellmotor geht an ein Schütz/Relais abgegriffen, so dass es nur im Fall wenn ein Raum beheizt werden soll, und es in dem Zeitraum liegt wenn die Heizungsanlage läuft die Umwälzpumpe tatsächlich arbeitet. Ich habe drei Schütz/Relais genommen weil ich nicht weiß ob es welche mit drei getrennten Eingängen gibt, und ich die Stellmotoren voneinander getrennt haben möchte. Nun zu meiner Frage: - Kann mir jemand die passenden Schütze oder Relais empfehlen? Ich habe leider selbst keine Angaben zu den Anzugsströmen bzw. Halteströmen gefunden, so dass ich unsicher bin ob der BuschJäger Temperaturregler es schafft den Stellmotor und den Schütz anzusteuern. Es handelt sich um den 1094 UTA. Das Datenblatt: http://www.busch-jaeger-catalogue.com/files_ONLINE/ba_0473-1-7174_1094-1097.pdf Vielen Dank! Gruß Johann
Johann schrieb: > passenden Schütze oder Relais empfehlen? Das kommt ganz auf Deine Heizung an. Es gibt z.B. FB-Heizungssysteme mit 230V~ und mit 24V. Was bei Dir verbaut wurde, weiß ich noch nicht.
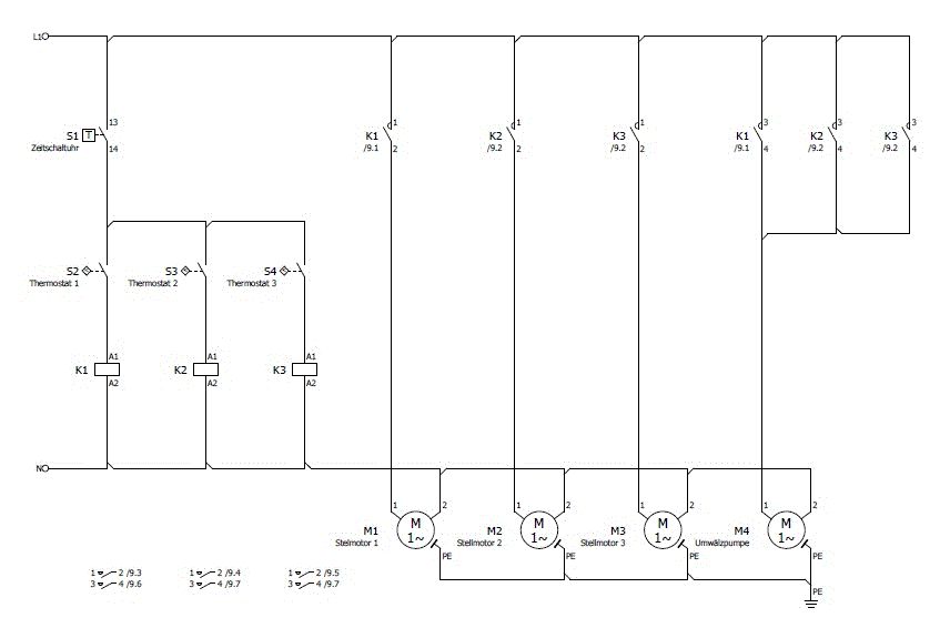
Vorrausgesetzt das Ganze läuft komplett mit 230VAC und Du kennst die Kontaktbelastbarkeit deiner Thermostate nicht, würde ich das so wie im Anhang aufbauen. Vorteil: Die Schaltkontakte Deiner Thermostate und der Zeitschaltuhr sind nicht mehr im Lastkreis und haben keine Leistung mehr zu schalten. Als Schütz sowas hier: http://www.conrad.de/ce/de/product/502378/Siemens-SIRIUS-3R-Schuetz-3RT1-Siemens-3RT1016-1AP01-1-Schliesser-S00-230-VAC/SHOP_AREA_84256&promotionareaSearchDetail=005 Edit: Bei der Auswahl der Schütze auf die Leistung achten, die diese schalten können.
Siemens Schütze vom grossen C halt. Ich bin mir sicher die kriegt man von einem anderen Hersteller in einem anderen Laden auch günstiger. Oder ist die Fa. Siemens neuerdings die einzige die Schütze herstellt?
Für eine Umwälzpumpe reicht ein Koppelrelais z.B. Finder oder Omron Finder hat ganz hübsche Schraubsockel dazu. Sowas bietet sich in diesem Fall an. Die Spannungsebene (24V oder 230V) kannst du direkt auf den Steuerköpfen der FB-Hzg. Ventile ablesen. mit ein bisschen Suche in der Bucht findet man sowas für 1-3 Euro plust Fracht. http://www.ebay.de/sch/i.html?_nkw=230v+relais+-12v+-24v+-5v&_sacat=0&_odkw=230v+relais+-12v+-24v&LH_BIN=1&_sop=15&_osacat=0&clk_rvr_id=435327055787&_mPrRngCbx=1
Johann schrieb: > Einfamilienhaus mit Heizkörpern im Obergeschoß und > Fußbodenheizung im Erdgeschoß. Weil die Vorlauftemperatur entsprechend > für die Fußbodenheizung zu hoch ist, ist im Zulauf des > Fußbodenheizungsverteilers Ein "mechanischer" (wie an den Heizkörpern, > Temperaturfühler ist am Verteiler befestigt) Thermostat vorgeschaltet. Falscher Ansatz: Es werden zwei eingenständige Heizkreise benötigt, einen "DK" direkten Heizkreis für die Heizkörper und einen "MK" mit vorgeschaltetem Mischer. Das wird von den gängigen Regelsystemen unterstützt.
Bitte melde dich an um einen Beitrag zu schreiben. Anmeldung ist kostenlos und dauert nur eine Minute.
Bestehender Account
Schon ein Account bei Google/GoogleMail? Keine Anmeldung erforderlich!
Mit Google-Account einloggen
Mit Google-Account einloggen
Noch kein Account? Hier anmelden.

