Hallo! Zum Lernen und aus Spaß an der Bastelei habe ich ein kleines regelbares Netzteil klassisch mit Längsregler gebaut. (Bild1) Mein Ziel ist es mit einer geringen Versorgungsspannung für die Operationsverstärker eine deutlich höhere Spannung zu regeln. Aufgebaut wird die Regelung auf einer 4x6cm Lochraster Platine. Da bei der Schaltung abhängig von der eingestellten Spannung und der Last (ab ca.4A) starke Schwingungen entstehen (im Bereich von 1-20kHz) war meine Überlegung folgende: Die Spannung für die Operationsverstärker und auch den Basiswiderstand für die Emitterschaltung zu erhöhen. Dadurch erhoffe ich mir ein weicheres Verhalten bei der Regelung. Mit dem Basiswiderstand muss ich noch experimentieren. Ist die Überlegung so richtig? Ich besitze kein Oszilloskop, kann daher keine Frequenzen messen. Was ich nicht hören kann ist für mich schwer feststellbar. Das Vorhandensein von Schwingungen kann ich nur durch das Verhalten verschiedener angeschlossener Verbraucher feststellen. zb. Mein Multimeter zeigt 4,3V, aber die 12V 10W Led die angeschlossen ist leuchtet deutlich zu stark für diese Spannung. Ich habe die Schaltung nochmal neu gezeichnet, die Kondensatoren an den OPs entfernt und Fehler ausgebessert (Bild2). EDIT: Sorry hab zweimal Nr. 2 angehängt. Der Unterschied ist dass beim letzten Q3 richtig gezeichnet ist PNP statt NPN.
Deine Regelung für die Spannung hat 5 aktive Bauteile, die Regelung für den Strom 6. Die Verzögerungen dieser Schleifen müssen sicherlich kompensiert werden, so dürfte das eher ein PWM-Gerät sein.
Q1 über eine Emitterschaltung mittels Q2 regeln wäre also die bessere Lösung? Q3 und Q4 würden dann wegfallen. Die Frage ist ob dann die Stromverstärkung noch reicht.
Gerald R. schrieb: > Da bei der Schaltung abhängig von der eingestellten Spannung und der > Last (ab ca.4A) starke Schwingungen entstehen... Das Übliche, schon tausendmal erklärt und dennoch immer wieder falsch gemacht. Du hast die Schaltung rein nach statischen Vorstellungen entworfen (wenn die Spannung da größer wird, dann muss der OPV dort abregeln...). Das ist zwar auch notwendig, aber zweitrangig. Die Schaltung arbeitet eben nicht nur quasistatisch, sondern dynamisch, also in einem bestimmten Frequenzbereich und mit Lasten, die eine frequenzabhängige Wirkung auf den Regler haben. Damit die Schaltung stabil ist (nicht schwingt) muss die o.g. statische Überlegeung im gesamten Frequenz- und Lastbereich erfüllt sein, und das ist die Kunst. Dein Regler schwingt (wie alle Schaltungen hier) einfach deshalb weil es eine zu große Phasendrehung im Regelkreis bei Schleifenverstärkung >1 gibt. In bestimmten Bereichen kannst du das verbessern (z.B. R10 rausnehmen und R13 mit einem kleinen C überbrücken), aber absolut stabil bekommst diese Schaltung nicht.
ArnoR schrieb: > In bestimmten Bereichen kannst du das verbessern (z.B. R10 rausnehmen > und R13 mit einem kleinen C überbrücken), aber absolut stabil bekommst > diese Schaltung nicht. Danke für die Antwort! Dass R10 nicht benötigt wird war mir bis jetzt nicht bewusst. Habe nicht bedacht dass R12 ja auch noch da ist ;-). Mit Kondensatoren habe ich bereits experimentiert und eine deutliche Verbesserung festgestellt. Gibt es eine bessere Lösung eine Spannung die höher als die Maximalspannung eines Operationsverstärkers ist mit diesem zu regeln?
> Gerald R. schrieb: > Gibt es eine bessere Lösung eine Spannung die höher als die > Maximalspannung eines Operationsverstärkers ist mit diesem zu regeln? Hallo, schau dir mal meine alten Schaltungen an. Sind alle praktisch erprobt. http://uwiatwerweisswas.schmusekaters.net/Uwi/ELEKTRONIK/StromVersorgung/ Das Prinzip für eine Regelung, die nicht an die Masse der Hauptquelle gebunden ist, findest du hier: http://uwiatwerweisswas.schmusekaters.net/Uwi/ELEKTRONIK/StromVersorgung/Labor-SV_2014/Labor-SV_2014_Prinzip.pdf Gruß Öletronika
Ohne Scope wird das nichts. Erst ein Scope besorgen
Also ich habe das Ganze jetzt anders aufgebaut. Die Spannungsregelung für den positiven Regler habe ich bereits gebaut und keine störenden Nebenwirkungen festgestellt. Möglicherweise sind noch Fehler im Plan und hier und da eventuell noch ein Kondensator. Aber ohne Oszi ist es schwierig Schwingungen zu finden. Die Komplementär Darlington Schaltung habe ich rausgenommen, das schwingt zu heftig. Danke für die Kommentare, werde mir wohl mal ein Oszi besorgen ;)
Für nur 0-15 V am Ausgang ist das gewählte Konzept mit OP Ausgang und Emitterfolger schon das passendere Konzept. Da muss man es sich mit der extra Verstärkung nicht unnötig schwer machen. Für die Stabilität wäre vermutlich noch ein Kondensator in der Rückkopplung des OPs für die Spannungsregelung nötig. Ein 2. optionaler Abgleichpunkt um die Schaltung noch schneller zu bekommen wäre eine RC Serienschaltung parallel zu R11. Bei einer Platine sollte man das vorsehen, muss es aber nicht gleich bestücken. Hilfreich und ggf. nötig wäre auch noch eine Ruhestrom (z.B. 10 mA) für die Endstufe - dies macht aber die Stromregelung so wie geplant etwas ungenauer. Die Stromregelung sieht nicht so gut aus - das geht ggf. mit extra Kondensatoren recht langsam. Das Konzept passt da noch nicht so wirklich. Üblicher ist die Verknüpfung direkt von den Transistoren. Die Anzeige dürfte auch noch nicht funktionieren. Bei mehr als etwa 3 A könnte der eine Endstufentransistor an die Leistungsgrenzen kommen. Für mehr Leistung dürften mehrere Transistoren parallel nötig sein. Besonders für ein Doppelnetzteil an die Ausgänge noch jeweils Dioden, die eine Spannung falscher Polung begrenzen. Gerade wenn man kein Oszilloskop zur Kontrolle hat, wäre eine Simulation (z.B. LTSpice) zu empfehlen. Damit kann man zumindest grobe Fehler gut erkennen und verschiedene Konzept gut Probieren. Eine Messung an der fertigen Schaltung ersetzt das aber nicht ganz. An der neg. Seite sind noch die OP Eingänge vertauscht.
Ein paar Dinge möchte ich noch ergänzen. Das Stabilitätsproblem kann man an der letzten Schaltung schön einfach sehen. Du hast einen OPV mit Verstärkung 1,75 und in dessen Rückkoppelschleife einen (unnötig langsamen) Darlington-Emitterfolger, der auch noch eine kapazitive Last (z.B eine zu versorgende Schaltung mit Eingangselko) zu tragen hat. Der (ungünstig) gewählte OPV hat eine geringe Phasenreserve, so dass er eigentlich nur ganz allein gut funktioniert. Der langsame Emitterfolger und die kapazitive Last erhöhen die Phasendrehung, so dass die Schaltung schon bei geringfügig größeren Lastkapazitäten als das eingetragene 1µ schwingen wird. Entschärfen kannst du die Situation, indem du den OPV etwas höher verstärken lässt (z.B. 3-fach oder 5-fach, Steuerspannung dann 0...5V bzw. 0...3V) und/oder indem du schnellere Transistoren einsetzt (z.B. BD135/MJL3281A), so dass ihre Phasendrehung in dem für den OPV relevanten Bereich unerheblich ist. Wie kommst du nur auf die Idee, den 2SC5856 einzusetzen? Einen ungeeigneteren Transistor gibt es gar nicht. Die Stromverstärkung bei 10A ist nur 6, die Leistung verträgt der nicht ... Der LM358 kann seine Ausgangsspannung nur bis etwa 4V an +Vcc bringen. Da wären dann noch 2Ube abzuziehen, was etwa 5,5V macht. Damit kannst du bei 17V Versorgung niemals 15V Ausgangsspannung erreichen.
Also.. 1. Ich habe die Schaltung für die Spannungsregelung schon aufgebaut und getestet mit 8A Last an 15,4V. 2. Es handelt sich um einen Tippfehler, es ist kein 2SC 5856 sondern ein 2SC 3856. Der hat bei 10A noch eine Verstärkung von 80 und hält 15A 150WATT aus. 3. Die Aussage betreffend des LM358N kann ich nicht verstehen. Der regelt bis VCC - 1V; VCC ist ca. 17V. Die restlichen Vorschläge und Anregungen von euch beiden werde ich natürlich beherzigen.
Visitor schrieb: > 1. Ich habe die Schaltung für die Spannungsregelung schon aufgebaut und > getestet mit 8A Last an 15,4V. Aber nie mit 17V Eingangssapnnung. Die 2 Ube des Darlington-Emitterfolgers gehen davon genauso ab wie die High-Level-Ausgangsspannung des LM358. > 2. Es handelt sich um einen Tippfehler, es ist kein 2SC 5856 sondern ein > 2SC 3856. Der hat bei 10A noch eine Verstärkung von 80 und hält 15A > 150WATT aus. Schon besser. Aber der TIP41 bleibt dennoch eine totale Fehlbesetzung. > 3. Die Aussage betreffend des LM358N kann ich nicht verstehen. Der > regelt bis VCC - 1V; VCC ist ca. 17V. Dann hilft vielleicht ein Blick ins Datenblatt? (Die 1,5V typ. gelten für Vcc=5V, bei Vcc=30V werden nur 4V garantiert, die 2K Last hat deine Schaltung nichtmal, es sind nur 20R*B_TIP41C), mit 17V liegst du irgendwo dazwischen. Aber so auf Kante designen und die typ. Werte als Garantie ansehen, und Netzspannungstoleranzen ausblenden usw. ist ja so cool.
Das sind Messungen aus der Praxis und keine theoretischen Werte aus den Datenblättern. Aber ok, ich bin soo cool ;-) Die verwendeten Teile lagen bei mir rum, ich habe die Schaltung aufgebaut um zu lernen. Das scheinen manche wohl nicht zu verstehen.
Visitor schrieb: > Das scheinen manche wohl nicht zu verstehen. Ich bitte vielmals um Entschuldigung für die Hinweise, kommt nicht wieder vor.
Der 2SC3856 ist schon eine gute Wahl, aber nur bis etwa 4-5 A. Darüber wird der Transistor bei einem Kurzschluss und ansprechen der Strombegrenzung zu heiß. Für 10 A sollten es also besser 3, aber wenigstens 2 der Transistoren sein. Beim TIP41 hat Arno recht: der ist da eine schlechte Wahl, weil recht langsam. Wenn man die Wahl hat wäre da was schnelleres (darf auch kleiner sein) besser. Die Spannung am Ausgang des LM358 ist tatsächlich recht knapp: bei höherem Strom wird man die 15 V wohl eher nicht mehr erreichen. Die LM358 sind je nach Hersteller ggf. etwas verschieden - da kann man ggf. Glück haben und mehr als die typische Spannung raus bekommen. Beim Nachbau oder Ersatz kann man aber auch Pech haben und dann wirklich 3-4 V verlieren. Der Hinweiss, dass dies deutlich mehr als die garantierten Werte ist, ist aber sehr berechtigt. Mit Reserve für weniger Netzspannung und die Reduzierung der Spannung bei Belastung dürften es aber eher 12-13 V als maximale Spannung werden. Für solche Hinweise auf kleine Schwächen der Schaltung sollte man dankbar sein, und nicht beleidigt reagieren.
Ok, ist gut. Bin ja dankbar, ist halt irgendwie falsch rübergekommen. Entschuldige bitte meine Reaktion ArnoR! Also ich habe jetzt extra nochmal nachgemessen: LM358N Nr1 VCC=17,46V Vout1=16,15V Vout2=16,11V Nr2 VCC=17,46V Vout1=16,13V Vout2=16,15V Also sind es bei meinen Exemplaren (Texas Instruments) ca. 1,33V. Rein rechnerisch können das bei meinem Test keine 15,4V sondern eher 14,5V gewesen sein. Hab ich wohl falsch notiert, sorry!
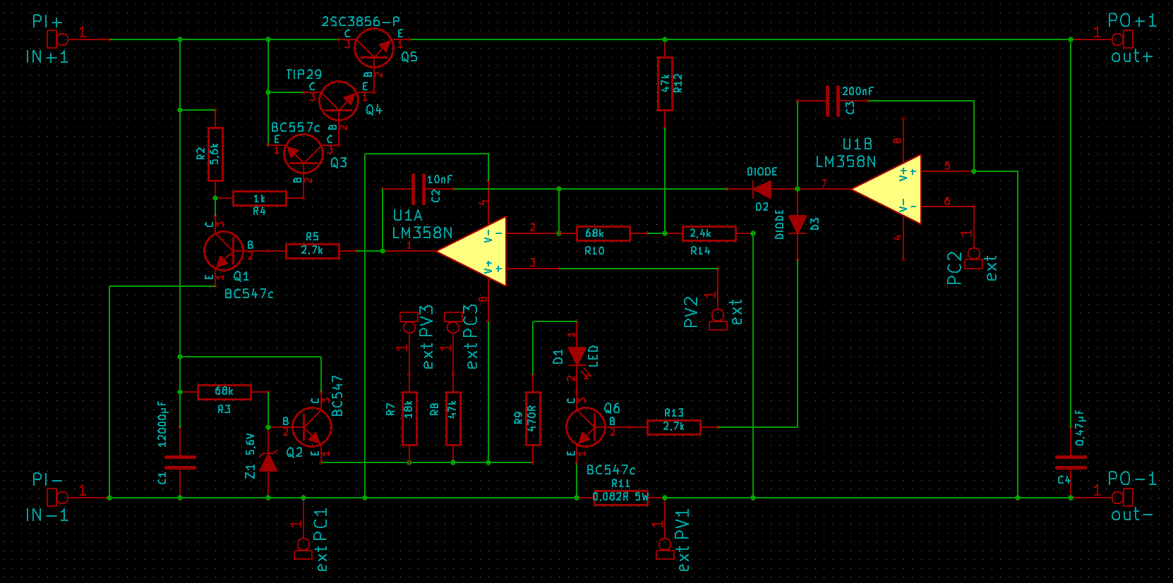
Nach 6 Monaten Wartezeit fürs Oszilloskop und der Sommerpause habe ich die letzten 3 Wochen einiges getestet und gelernt! Danke nochmal für eure Tipps! Die Spannungsregelung habe ich soweit fertig. Ich hoffe bei der Parallelschaltung der Leistungstransistoren fallen keine gröberen Probleme an. So etwas ähnliches wie einen Schaltplan der aktuellen Schaltung habe ich mal angehängt. Eingangsspannung 30V DC und stabilisierte 10,2V für OPV und Potentiometer. Getestet mit 8V und 16 OHM Lastwiederstand am Ausgang.
Der C2 (22nF? Kann man ja kaum lesen) ist kontraproduktiv, damit verschlechterst Du Deine Regelung. Der 2k-Widerstand an Emitter von Q2 gehört nicht gegen Masse, sondern an Emitter von Q3.
Tcf K. schrieb: > Der C2 (22nF? Kann man ja kaum lesen) Das ist ein PDF, das Vorschaubild ist nicht von mir. Das PDF ist gut lesbar. C2 werde ich mal entfernen und testen, danke für die Info. Die 2k auf Masse sind Absicht, dadurch kann die Schaltung deutlich schneller nach unten regeln.
Gerald R. schrieb: > habe ich die letzten 3 Wochen einiges getestet und gelernt! So? Was denn? An der Schaltung erkennt man das nicht. Ich schrob oben schon: ArnoR schrieb: > z.B. R10 rausnehmen und R13 mit einem kleinen C überbrücken (Das wäre jetzt R8) und nun wirds noch schlimmer (R7/C2). Beides raus. Was ist mit R1/R3? Wenn du die zu hohe Schleifenverstärkung reduzieren willst, dann erhöhe doch einfach R4 entsprechend und lass R1/R3 weg.
ArnoR schrieb: > ...und nun wirds noch schlimmer (R7/C2). Beides raus. > > Was ist mit R1/R3? Wenn du die zu hohe Schleifenverstärkung reduzieren > willst, dann erhöhe doch einfach R4 entsprechend und lass R1/R3 weg. Ok, R7/C2 versuche ich gerne. Aber wenn ich R4 erhöhe dann funktioniert die Regelung nicht mehr. Komm dann nicht mehr gegen 0V am Ausgang. Komme ja so schon nicht mehr unter 1,2V für die Basis von Q2.
Sind noch mehr Bugs drin: - 30V Eingangsspannung reicht nicht für 30V Ausgangsspannung -- dafür jedenfalls sind die Spannungsteilerverhältnisse ausgelegt. An den beiden Emitter-Strecken fällt Spannung ab, an R2, Ripple am Eingang, niedrige Netzspannung, heißer Trafo und damit höherer Kupferwiderstand etc. fordern deutlich mehr Reserve. - Der LM358 kann an den Eingängen nur bis auf 1,5V an V+, das Poti kann also nicht "Vref" bis V+ verlangen. - V- des OP gehört nicht hinter den Shunt R6, sondern davor. Der Spannungsabfall an dem Shunt R6 zieht den V- des OP nach oben! - Vref hat seinen Bezugspunkt vor dem Shunt R6, der Ausgangsspannungsteiler R8/R9 seinen Bezugspunkt hinter dem Shunt R6! Dadurch verschlechtert sich der statische Innenwiderstand um den Faktor R6 * R8 / R9 = 0,2 Ohm.
Tcf K. schrieb: > Sind noch mehr Bugs drin: > > - 30V Eingangsspannung reicht nicht für 30V Ausgangsspannung -- dafür > jedenfalls sind die Spannungsteilerverhältnisse ausgelegt. An den beiden > Emitter-Strecken fällt Spannung ab, an R2, Ripple am Eingang, niedrige > Netzspannung, heißer Trafo und damit höherer Kupferwiderstand etc. > fordern deutlich mehr Reserve. Das ist mir klar. > - Der LM358 kann an den Eingängen nur bis auf 1,5V an V+, das Poti kann > also nicht "Vref" bis V+ verlangen. Korrekt, da fehlt noch ein Widerstand! > - V- des OP gehört nicht hinter den Shunt R6, sondern davor. Der > Spannungsabfall an dem Shunt R6 zieht den V- des OP nach oben! > > - Vref hat seinen Bezugspunkt vor dem Shunt R6, der > Ausgangsspannungsteiler R8/R9 seinen Bezugspunkt hinter dem Shunt R6! > Dadurch verschlechtert sich der statische Innenwiderstand um den Faktor > R6 * R8 / R9 = 0,2 Ohm. Richtig erkannt, habe ich falsch gezeichnet. Vref und der OP haben die gleiche Masse nach dem Shunt.
Gerald R. schrieb: > Richtig erkannt, habe ich falsch gezeichnet. Vref und der OP haben die > gleiche Masse nach dem Shunt. Dann hoffe ich dass nicht nur das Vref-Poti sondern auch die Vref-Quelle ihren Bezugspunkt nach dem Shunt hat...
Ja so ist es. Ein zweiter LM358 bildet mittels 5,6V Z-Diode und 20V Betriebsspannung die 10,2V Referenzspannung. Teil B dieses OPV soll dann die Eingangsspannung (12v AC / 24V AC) des Gleichrichters der nicht im Plan enthalten ist mittels Relais umschalten. Beide Operationsverstärker haben die gleiche Masse wie du schon richtig gesagt hast und zwar hinter dem Shunt.
Z-Dioden sind nicht die besten Referenzen, da kannst Du eigentlich das OP-Gehampele sparen. Nimm besser eine dafür vorgesehene Referenz oder wenigstens einen TL431. Beim Trafoumschalten dicke Hysterese nicht vergessen, sonst klappert das so häßlich -- von anderen Problemen wie Störungen abgesehen.
Gerald R. schrieb: > Komme ja so schon nicht mehr unter 1,2V für die Basis von Q2. Dann stimmt was nicht; wenn Q1 voll aufgesteuert ist, sollte Uc bei etwa 0,6V liegen (ohne Ucesat wäre Uc=0,53V)
@ Tcf Kao Danke für die Info, den TL431 schau ich mir mal an. Hysterese werde ich nicht vergessen. Aber es könnte sein dass ich es doch lieber manuell umschalte ;-) @ ArnoR Vergisst du bei deiner Rechnung die 0,5V Spannungsabfall bei R4 wenn ich 30V Versorgungsspannung habe oder kapier ich da was nicht?
Gerald R. schrieb: > Vergisst du bei deiner Rechnung die 0,5V Spannungsabfall bei R4 Nö, die 0,53V sind der Spannungsabfall über dem R4. Dazu kommt noch etwa 0,05V Ucesat. In Summe ~0,6V < 1,2V.
Gerald R. schrieb: > Aber wenn ich R4 erhöhe dann funktioniert die Regelung nicht mehr. > Komm dann nicht mehr gegen 0V am Ausgang. > > Komme ja so schon nicht mehr unter 1,2V für die Basis von Q2. Verstehe ich nicht, um den Ausgang auf Null zu bringen, überschlagsmäßig: (((30V / R2) * R4) + Ube(Q1)) * ((R1 / R3) + 1) = 5,4V Mehr muss der OP nicht ausgeben um den Ausgang auf Null Volt zu bringen. Edit: Vermutlich zieht Dir der Leckstrom durch 2SC3856 den Ausgang nach oben.
Gerald R. schrieb: > Zum Lernen und aus Spaß an der Bastelei habe ich ein kleines regelbares > Netzteil klassisch mit Längsregler gebaut. Emitterschaltung, Emitterfolger. Du meinst wahrscheinlich Emitterfolger weil die bekannt stabil und schwingungsproblemarm sind, hast aber tatsächlich eine Emitterschaltung aufgebaut wegen Q1 und Q3. Gerald R. schrieb: > Also ich habe das Ganze jetzt anders aufgebaut. Das ist nun ein Emitterfolger, aber ein LM358 mit V+ versorgt kann nicht an V+ messen, und liefert natürlich nicht 30V sondern mit Darlingtonfolger eher 25V. Gerald R. schrieb: > Die Spannungsregelung habe ich soweit fertig. Jetzt wiederum ist es KEIN Emitterfolger mehr wegen Q1 mit der inhärenten Instabilität, die du mit C1 bekämpfen willst aber mit C2 zunichte machst.
Hallo! Habe am Wochenende wiedermal gebastelt, sieht jetzt wieder ganz anders aus. Die Spannungsregelung ist sehr stabil, bei der Strombegrenzung bin ich mir nicht ganz sicher. Die Schaltung kann auch an einfacher Gleichspannung betrieben werden wie Notebook Netzteile. Was sagt ihr?
Gerald R. schrieb: > Was sagt ihr? Die Auflösung des Schaltplanes ist zu schlecht, um Werte zu erkennen. Die Schaltung lief nur mit 1µF und ohmscher Last? Was passiert bei 10µ, 100µ, 1m, 10m? 4V Spannungseinbruch findest du gut? Die Schwingungen zeigen eine Phasenreserve von ca. 30° an, da fehlt nicht mehr viel zum Oszillator. Den Leistungstransistor könnte man wohl in die Komplementärschaltung (dann mit 3 Transistoren) integrieren.
ArnoR schrieb: > Gerald R. schrieb: > Die Auflösung des Schaltplanes ist zu schlecht, um Werte zu erkennen. Das ist ein PDF, nicht auf das Bild klicken. > Die Schaltung lief nur mit 1µF und ohmscher Last? Was passiert bei 10µ, > 100µ, 1m, 10m? Ja mit 1µF und nur ohmsche Last. Werde da noch ein paar Tests machen. > 4V Spannungseinbruch findest du gut? Die Schwingungen zeigen eine > Phasenreserve von ca. 30° an, da fehlt nicht mehr viel zum Oszillator. In Anbetracht von Leerlauf auf 1,4A Last finde ich das persönlich gut. Mit größerem Kondensator könnte es besser werden, werde ich auch noch testen. > Den Leistungstransistor könnte man wohl in die Komplementärschaltung > (dann mit 3 Transistoren) integrieren. Du wirst es nicht glauben, aber daran habe ich auch schon gedacht ;-) Wie ist deine Meinung zur gebastelten Strombegrenzung? Gibt es da von deiner Seite einen besseren Vorschlag?
Habe noch 3 Tests bei 22V 1,4A gemacht mit 10, 100 und 2200µF.
Gerald R. schrieb: > Mit größerem Kondensator könnte es besser werden Nein, es wird schlimmer. Du musst im gleichen Maße wie die Ausgangskapazität ansteigt auch den OPV langsamer machen (C3). Gerald R. schrieb: > Du wirst es nicht glauben, aber daran habe ich auch schon gedacht ;-) Warum hast du es dann nicht gemacht? Ein unnötiger Transistor weniger bedeutet auch weniger Probleme. Die Verstärkung der Komplmentärschaltung ist zu groß (~7..8). Die Schaltung wird stabiler, wenn die Verstärkung kleiner ist. Die Verstärkung so einstellen, dass der OPV den Spannungshub noch schafft. Gerald R. schrieb: > Wie ist deine Meinung zur gebastelten Strombegrenzung? Bei deiner Version wird der Spannungsregler im Gegensatz zu den veroderten Schaltungen mit parallel wirkenden Reglern nicht verlangsamt, weil der nicht in die Sättigung getrieben wird, aber die Strombegrenzung dauert länger, was aber auch egal ist, da die Ausgangskapazität eh lange Strom nachliefert. Hatten wir gerade in einem anderen Thread.
Generell sollte man nicht unnötig viele Verstärker in Reihe schalten. Ein OPV reicht spielend für die Spannungsverstärkung aus. Der Klassiker enthält daher nur 2 OPVs (je einer für Strom und Spannung), die als wired-AND über Dioden direkt auf den Ausgangstransistor arbeiten. Je nach benötigtem Strom, ist der Ausgangstransistor Darlington oder MOSFET. Zusätzliche Transistoren in Emitterschaltung sind besonders anfällig für Phasenverschiebung, d.h. Schwingfreude.
Ausgenommen der Schutzdioden bin ich nun fertig. Bin mir noch nicht im Klaren wie ich die Schaltung effizient schütze. Eventuell hat ja jemand einen Vorschlag oder zwei ;-). Der Grund für die vielen Probleme waren fake-LM358N OPs mit TI Beschriftung von Ebay. Die hatten nicht nur eine Wahnsinnige slew rate von 18-20V/µs (anstelle ca. 0,4 V/µS) sondern auch massive Probleme eine Spannung zu halten. Eventuell habe ich einen Komparator anstelle eines Operationsverstärkers gekauft. Im Bild sind 2 Tests mit 1kHZ 3V Rechtecksignal. Spannungsversorgung der OPs ist immer 30V. Oben als Schmitt Trigger und unten mit einer Verstärkung von 2. Siehe Bild im Anhang. Die Kondensatoren an den Ausgängen der OPs sind jetzt weg, die werden bei Verwendung originaler LM358N nicht in dieser Schaltung benötigt. Die beiden Last Tests habe ich unter gleichen Bedingungen wie am 22.12.2015 gemacht. Vielen Dank nochmal für eure Tipps!
Die Chinesen kommen sogar auf die Idee LM358 zu fälschen - und dann auch noch was drin was annähernd ein OP ist. Das könnte ggf. auch einfach Ausschuss sein und keine echte Fälschung, denn der LM358 ist so ziemlich der billigste OP. Trotzdem sehr ärgerlich - wieder 8 Cent in den Sand gesetzt. Normal hat man einen Kondensator am OP um die Regelung absichtlich langsamer zu machen und vertraut nicht auf die begrenzte Bandbreite des LM358. Je nach Transistoren ist der auch noch immer zu schnell. Hier fehlt es aber wohl noch etwas an Ausgangskappazität. Der Regler ist zu langsam um schnell genug nachzuregeln und daher der doch relativ große Spannungseinbruch.
Bitte melde dich an um einen Beitrag zu schreiben. Anmeldung ist kostenlos und dauert nur eine Minute.
Bestehender Account
Schon ein Account bei Google/GoogleMail? Keine Anmeldung erforderlich!
Mit Google-Account einloggen
Mit Google-Account einloggen
Noch kein Account? Hier anmelden.















