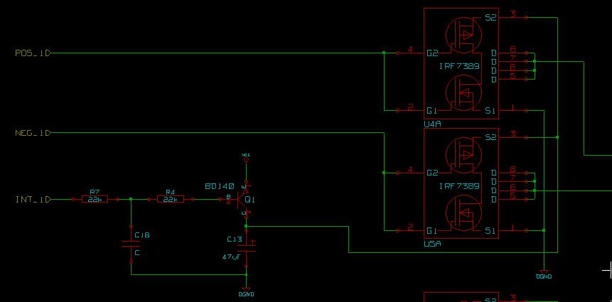
Hi, ich habe diese Schaltung zur Erzeugung Bipolarer Spannungsimpulse entworfen. POS_1: Erzeugt einen Positiven Impuls am Ausgang NEG_1: Erzeugt einen Negativen Impuls am Ausgang INT_1: Hier wird ein PWM Signal angelegt, über das RC-Glied geglättet und mittels Q1 der Strom der H-Brücke begrenzt um Somit die Amplitude des Ausgangssignals zu verändern. So sollte es funktionieren. Erkennt jemand grobe Fehler? Oder ist die beschriebene Funktion so nicht gegeben? Habt ihr eine bessere Lösung? Danke schonmal für eure Hilfe Gruß Jörn
Digital: Also imho funktioniert die Logik so nicht. Analog kann ich nicht so viel, kA ob die PWM-Schaltung funktioniert.
ja doch, sie funktioniert schon. Was ist der Sinn dahinter? Hardware-Schutz der Brücke? Allerdings funktioniert sie nicht mit P-FETs... Die leiten wenn du logisch "0" ausgibst. ich würde generell einen FET-Treiber für sowas nehmen. Die "unteren" kannst du ja so gar nicht einschalten.
Ja genau Hardware Schutz der H-Brücke. Nicht das ich beim Falsch programmieren sofort die MosFET's zerlege. Die "Strombegrenzung" ist genau der Teil wo ich mir nicht so sicher bin...
na die sind auch nur ganz einfache FETs, nur leiten die schon mit niedrigerer Spannung am Gate. Generell schalten FETs bei einer gewissen Gate-Spannung gegenüber Source. P-Kanal bei negativer Spannung. P.S. kann jetzt irgendwie nicht auf die IRF-Website zugreifen, um mir das Datenblatt anzuschauen. Na dann halt nicht. Schönen Abend noch.
Hi, ja ich hab ins Datenblatt geschaut... ist echt wie du sagst... Dabei hab ich auch gleich einen gravierenden Fehler im Symbol für den Mosfet festgestellt. Die Tatsache das der P-Channel Fet bei Low schaltet wird zum Vorteil :-) Denn so kann ich die ganze Logik davor weglassen.. Kann noch jemand was zu der Strombegrenzung sagen... geht das eventuell auch einfacher ? Bis jetzt schonmal vielen dank für eure Hilfe Gruß Jörn
für sowas eignet sich wunderbar TINA von TI oder proteus von labcenter.
Bitte melde dich an um einen Beitrag zu schreiben. Anmeldung ist kostenlos und dauert nur eine Minute.
Bestehender Account
Schon ein Account bei Google/GoogleMail? Keine Anmeldung erforderlich!
Mit Google-Account einloggen
Mit Google-Account einloggen
Noch kein Account? Hier anmelden.

