Hallo Leute! Ich würde gerne mal ein neues HW- und SW- Projekt lostreten. Ein Gateway mit folgenden Daten: Schnittstellen: Ethernet IEEE-488 CAN Hardware: ATMega90CAN128 ENC28J60 Ethernet Controller IEEE-488 via Ports mit Bitbanging Galv. isolierter CAN Schaltregler Software: Treiber für Ethernet TCPIP Treiber für IEEE-4888 Treiber für CANOpen
Ach so ich habe die PC-Seite vergessen: Dazu soll noch eine DLL und ein Monitorprogramm gemacht werden
hbloed schrieb: > Hardware: > > ATMega90CAN128 > ENC28J60 Ethernet Controller Eine schlechte Wahl. Ein 90CAN128 kostet bei Farnell etwa 17 Euro. Dazu kommt noch der ENC28J60 für 2-4 Euro je nach Bauform. Ein TI/Luminary Micro LM3S8930 kostet dort 9.32 Euro und damit etwa die Hälfte, hat gleich 10/100 Ethernet inkl Phy(!), 2*CAN, 256k Flash und 64k RAM eingebaut und ist viel viel leistungsfähiger. fchk
Schoenes Teil aber, Farnell verkauft mir nix, Den AVR möchte ich verwenden weil der einfacher zu bekommen ist, für weniger als 17€. Dafür habe schon reichlich Treiber einen Emulator und eine Entwicklungsumgebung. Es gibt übrigens noch schönere Prozessoren z.B. von NEC.
Allerdings, ich habe vor Jahren Geräte mit IEEE-488 entwickelt. Damit kenne ich mich gut aus. Sollte also kein Problem sein. Wo es bei mir eher Eng wird ist die PC-Seite.
bei 1mbit can ist ein avr ein wenig zu langsam... der enc ethernet controller ist auch steinzeitlich.. sinnvoller wäre ein aktueller 32bit prozessor mit integrierten can+ethernet
Ich hab auch so'n Projekt gestartet. Die Hardware existiert schon. Serial zu IEEE488. Der Mega32 darf dann den 488 Master spielen. Ich wuerd dann etwas hoehere Befehle auf dem Mega installieren, sodass man etwas weniger Bandbreite zum PC braucht. Der PC soll sich nicht mehr um Listener/Talkener kuemmern, sondern nur noch Anfragen senden.
hbloed schrieb: > Schoenes Teil aber, Farnell verkauft mir nix, Dann halt woanders. DIgikey, Segor, etc. > Den AVR möchte ich verwenden weil der einfacher zu bekommen ist, > für weniger als 17€. Dafür habe schon reichlich Treiber einen > Emulator und eine Entwicklungsumgebung. ... und einen passenden Horizont. Bei Dir reichts noch nicht mal für einen Olimex oder OpenOCD USB Adapter. Wer nur einen Hammer hat, für den sieht alles wie ein Nagel aus.
Für den PC gibt es IEEE488 ( oder auch IEC.Bus ) Einsteckkarten oder Adapter IEEE488 auf USB mit den erforderlichen Treiber von namhaften Firmen wie Agilent, National usw. Auch bieten Diese Firmen IEEE488 auf Netzwerk Adapter an. Diese findet man unter anderen gebraucht in der Bucht. Es macht eigentlich kein Sinn das Rad neu zu erfinden. Wer Messgeräte oder ähnliches mit dem IEEE488 Anschluss bauen wille, für den bietet National fertige Asics an die sich ähnlich verhalten wie der abgekündigte Nec2710. Diese Asics übernehmen das komplette Handshaking und noch einiges mehr. Sie werden wie andere Mikroprozessorperipheriebausteine auch über Register angesprochen und besitzen zum Mikroprozessor Handshakeleitungen. Somit macht es auch hier keinen Sinn solche Schnittstellen komplett selbst zu entwickeln. Ralph Berres
Ralph Berres schrieb: > Für den PC gibt es IEEE488 ( oder auch IEC.Bus ) Einsteckkarten oder > Adapter IEEE488 auf USB mit den erforderlichen Treiber von namhaften > Firmen wie Agilent, National usw. Auch bieten Diese Firmen IEEE488 auf > Netzwerk Adapter an. Diese findet man unter anderen gebraucht in der > Bucht. Es macht eigentlich kein Sinn das Rad neu zu erfinden. > €€€€€€€€€€€€€€€ selbst gebraucht €€€€€€€€€€€€€ > Wer Messgeräte oder ähnliches mit dem IEEE488 Anschluss bauen wille, für > den bietet National fertige Asics an die sich ähnlich verhalten wie der > abgekündigte Nec2710. Diese Asics übernehmen das komplette Handshaking Wer keine Ahnung hat sollte sich besser nicht zu Worte melden Nec2710 -> upD7210 oder? > und noch einiges mehr. NI verkauft nix an Endverbraucher und auch an Firmen nix in geringen Mengen Sie werden wie andere > Mikroprozessorperipheriebausteine > auch über Register angesprochen und besitzen zum Mikroprozessor > Handshakeleitungen. Ich wusste gar nicht das die RD und WR Anschlüsse ein Handshake haben. Kannste mir mal die Pinbezeichung der Handshakeleitungen zumailen. Somit macht es auch hier keinen Sinn solche > Schnittstellen komplett selbst zu entwickeln.
>Wer keine Ahnung hat sollte sich besser nicht zu Worte melden Jetzt halte erst mal den Ball flach. Auf diesen Niveau bin ich nicht gewillt weiter mit dir zu schreiben. heinbloed schrieb: > Nec2710 -> upD7210 oder? upd 2710 stammt von Nec. Bei National heist er jetzt nat2710 heinbloed schrieb: > NI verkauft nix an Endverbraucher und auch an Firmen nix in geringen > > Mengen Es gibt Entwicklungsmuster bei National. Die beinhalten 2 Stück. Kosten irgendwas an 40 Euro. Ansonsten Mindeststückzajl 10 Stück. Auch als Privatman kann man die bekommen , wenn man höflich drumm bittet, und denen erklärt was man vorhat. Ansonsten kann man sich ja als Student ausgeben. Was das Handshaking betrifft gebe ich dir recht. Es gab von Phillips einen Controller der ohne Mikroprozessor auskommt HEF 4738 der hatte ein echtes Handshaking. Den hatte ich in Erinnerung. Im übrigen ist mir der IEC-Bus schon geläufig, ich steuere an die 20 Messgeräte darüber. Ralph Berres
Ralph Berres schrieb: >>Wer keine Ahnung hat sollte sich besser nicht zu Worte melden > > > Jetzt halte erst mal den Ball flach. Auf diesen Niveau bin ich nicht > gewillt weiter mit dir zu schreiben. > Das war auch nicht so gemeint, hab mich nur über andere posts geärgert wo mir verengter Horizont und dass ich mich kein Olimexzeug leisten kann vorgeworfen wurde. Hätte nicht gedacht dass solche unqualifizierten posts hier so schnell auftauchen. > > > heinbloed schrieb: >> Nec2710 -> upD7210 oder? > > upd 2710 stammt von Nec. Bei National heist er jetzt nat2710 > > heinbloed schrieb: >> NI verkauft nix an Endverbraucher und auch an Firmen nix in geringen >> >> Mengen > > Es gibt Entwicklungsmuster bei National. Die beinhalten 2 Stück. Kosten > irgendwas an 40 Euro. Ansonsten Mindeststückzajl 10 Stück. Das stimmt so nicht. 9 Stück 249€ + versand + mwst. Für so ne alte Gummer. Ich hab davon noch 2 Stangen, ich wollte aber was machen was jeder nachbauen kann. > > Auch als Privatman kann man die bekommen , wenn man höflich drumm > bittet, und denen erklärt was man vorhat. Ansonsten kann man sich ja als > Student ausgeben. > Das funktioniert vielleicht im Einzefall, aber wenn mehrere das Versuchen gibts ganz schnell nix mehr. Ich hatte mal in einem Funkamagazin ein DDS- Projekt, kurz nach Veröffentlichung gab es von dem Chip keine Muster mehr bei AD: > Was das Handshaking betrifft gebe ich dir recht. Es gab von Phillips > einen Controller der ohne Mikroprozessor auskommt HEF 4738 der hatte ein > echtes Handshaking. Den hatte ich in Erinnerung. > > Im übrigen ist mir der IEC-Bus schon geläufig, ich steuere an die 20 > Messgeräte darüber. > > > Ralph Berres Das ganze Projekt ist für mich jetzt gestorben, ich habe einfach keine Lust mich mit solchen "Horizont-posts" abzugeben. Ich werde das zwar totzdem machen, aber nicht mehr hier veröffentlichen.
Frank K. schrieb: > hbloed schrieb: >> Schoenes Teil aber, Farnell verkauft mir nix, > > Dann halt woanders. DIgikey, Segor, etc. > >> Den AVR möchte ich verwenden weil der einfacher zu bekommen ist, >> für weniger als 17€. Dafür habe schon reichlich Treiber einen >> Emulator und eine Entwicklungsumgebung. > > ... und einen passenden Horizont. Bei Dir reichts noch nicht mal für > einen Olimex oder OpenOCD USB Adapter. Frage was wissen Sie über meinen Horizont? Der dürfte etwas größer sein als der Ihre. Für was ich mein Geld einsetzte ist ja wohl mein Problem. Bekommen Sie für diese Sprüche Geld von Olimex? > > Wer nur einen Hammer hat, für den sieht alles wie ein Nagel aus. > Sprüche klopfen kann ich auch...... > > > Beitrag melden | Bearbeiten | Löschen |
Manche Leute haben einen Horizont mit dem Radius null, und das nennen sie dann ihren Standpunkt. (Euler)
hbloed schrieb: >> Es gibt Entwicklungsmuster bei National. Die beinhalten 2 Stück. Kosten > >> irgendwas an 40 Euro. Ansonsten Mindeststückzajl 10 Stück. > > > > Das stimmt so nicht. 9 Stück 249€ + versand + mwst. Für so ne > > alte Gummer. Ich hab davon noch 2 Stangen, ich wollte aber was > > machen was jeder nachbauen kann. Schade das ich das schriftliche Angebot von NI nicht mehr habe. Genau für diese Fälle , wenn jemand nicht eine ganze Stange von den Kontrollern kaufen will gibt es ein Entwicklungskit welche 2 Stück von diesen ICs beinhaltet. So war es jedenfalls vor 2 Jahren. NI scheint übrigens mittlerweile der einzige Anbieter solcher Kontroller auf dem Markt zu sein. Ines hatte auch mal sowas angeboten. Aber die scheinen abgekündigt zu sein. Ralph Berres
Ralph Berres schrieb: > Genau für diese Fälle , wenn jemand nicht eine ganze Stange von den > Kontrollern kaufen will gibt es ein Entwicklungskit welche 2 Stück von > diesen ICs beinhaltet. So war es jedenfalls vor 2 Jahren. > > NI scheint übrigens mittlerweile der einzige Anbieter solcher Kontroller > auf dem Markt zu sein. Ines hatte auch mal sowas angeboten. Aber die > scheinen abgekündigt zu sein. Ich glaube das gibt es nicht mehr, könnte mir vorstellen das der Controller bald abgekündigt wird. Es gibt noch für den TNT4882 ein Entwicklerkit für 899€, super oder?
das ist natürlich doof. Ich hatte irgendwann vor , eine IEC-Bus Schnittstelle für mein Labornetzteil zu entwickeln. Siehe http://www.et.fh-trier.de/diplom/Team/berres/downloadbereich/Bauanleitungen%20Messtechnik/Labornetzteil%200-30V%200-4Amp/ Das wäre dann das Sahnehäubchen gewesen. Ralph Berres
hbloed schrieb: > Schoenes Teil aber, Farnell verkauft mir nix, Klar, über den HBE-Shop. Ich hatte so ein Projekt auch mal gedanklich eruiert, ich hätte sogar den zeitkritischen IEEE488-Krams ggf. in ein CPLD gepackt. Am Ende war es einfacher und schneller realisiert, mir eine billige ISA- Karte für IEEE488 zu kaufen und diese in den Bastelrechner zu stopfen.
Den IEEE488 Bus kann man doch in Software machen wenns den Controller nicht mehr gibt. Den IEEE488 in Software war damals bei den Commodore Computer recht verbreitet. Und tackerte eine 1MHZ 6502 CPU im inneren. Ok den maximalen Speed gabe es damals halt nicht. Aber mit den heutigen 32 Bit Controller sollte es doch schneller gehen. Man koennte alles in einen Cortex Prozessor von TI unterbringen (Ethernet , CAN ,RS232) und den IEEE488 an den Port per Software emulieren.
Jörg Wunsch schrieb: > Am Ende > > war es einfacher und schneller realisiert, mir eine billige ISA- > > Karte für IEEE488 zu kaufen und diese in den Bastelrechner zu > > stopfen. Das Problem ist ja nicht der Rechner, sondern das zu steuernde Gerät was man damit ausrüsten will. Aber du hast eigentlich recht. Irgend eine alte IECbusKarte aus der Bucht den Controller ausschlachten nebst Treiberics. Helmut Lenzen schrieb: > Man koennte alles in > > einen Cortex Prozessor von TI unterbringen (Ethernet , CAN ,RS232) und > > den IEEE488 an den Port per Software emulieren. Unterschätze den IEC-Bus nicht. Was der Controller alles bewältigen muss ist nicht von schlechten Eltern. Sicher kann man ein paar wenige Funktionen die Software selbst schreiben, aber schon das drei Draht handshaking ist nicht ohne. Wenn man dann noch die ganzen Gerätebefehle implementieren will ist das schon eine Herausforderung. Sicher auch für einen erfahrenen Programmierer wie du es glaube ich bist. Nicht umsonst hat es eine ganze Reihe spezieller IEC-Bus Controller gegeben, die einen das alles abgenommen hat. Ralph Berres
Ralph Berres schrieb: > Wenn man dann noch die ganzen Gerätebefehle > implementieren will ist das schon eine Herausforderung. Du must das ein bisschen trennen. Der Controller setzt einfach Kommandos die ueber die Ethernetbus kommen 1:1 auf den IEEE um. Die Geraetebefehle koennte man dann in die PC Software verlagern. Wenn man sich die Plaene von HP/Agilent mal anschaut da haben die das teilweise sogar in TTL Hardware gemacht. Soviel Intelligenz kann man aber auch nicht in der damaligen Hardware einbauen. Also wurde dort auch der groesste Teil in der Software des Controller realisiert. Erst in den etwas neueren Modellen haben die dann einige Controller verbaut (unter anderem TI und Motorola). Ich bin selber am ueberlegen sowas zu bauen um meinen HP Geraetepark an meinem PC zu bekommen. Ich koennte dazu eine ARM Prozessorkarte fuer verwenden die ich letztens entwickelt habe (allerdings in der Form keine IEEE488 Treiber ICs drauf) (LM3S8938 von TI)
Ehrlich gesagt bin ich da tatsächlich ein wenig überfordert, das zu verstehen, wie das funktioniert. Der IEC Bus unterscheidet ja zwischen den übermittelten Daten und Gerätebefehle. Die unterscheiden sich ja in dem eine der Leitungen auf 1 gesetzt wird. ( Ich weis jetzt auswendig nicht gerade welche, könnte das ATN sein ? ). Die Gerätebefehle sind ja für den IEC Bus allgemeingültige Befehle wie SPD, GTL und so weiter. Dafür muss glaube ich ATN gesetzt sein. Die Daten sind dann die Befehle die der Mikroprozessor des Gerätes decodieren und ausführen muss. Beides sind allgemein Ascibefehle. Die Datenbefehle können aber auch binär sein. Wie man das aus dem Ethernetprodokoll auseinander klabüstert, habe ich nie gerafft, sondern immer nur erstaunt zur Kenntnis genommen, das sowas offensichtlich funktioniert. Ebenso das Handshaking auf dem IEC Bus was ja auch nicht so ganz trivial ist. Ich hatte mal Wochen damit verbracht einen Hänger auf dem IEC-Bus mit dem Logiganalyzer zu finden. Ich selbst benutze noch eine alte HP82335 Karte unter Win3.11, weil ich von HP einen Basic Interpreter besitze, was einen das Steuern der Messgeräte ungemein erleichtert. Ich hab das mal mit Visualbasic versucht, und nach 4 Wochen entnervt aufgegeben. Ralph Berres
Ralph Berres schrieb: > Aber du hast eigentlich recht. Irgend eine > alte IECbusKarte aus der Bucht den Controller ausschlachten nebst > Treiberics. Dummerweise haben die neueren (selbst ISA-)Karten zwar noch die "klassischen" Treiber-ICs, aber die Logik ist dort schon als (offenbar) Makrozelle in ein dickes ASIC gewandert, statt separat als µPD7210/NAT7210 vorzuliegen. Du könntest dann höchstens gleich die ganze ISA-Karte nutzen, am Ende ist ISA ja ein relativ Microcontroller-freundlicher Bus. Als ich das letzte Mal geguckt habe, gab's noch irgendein TNTxxx von NI, das explizit dafür gedacht war, in Geräte integriert zu werden. Im Vergleich zu den ICs, die auf den PC-Karten verbaut werden (derzeit TNT5004), fehlt diesem IC die Fähigkeit, Controller am Bus zu werden, es kann nur Listener oder Talker werden. Allerdings siehe oben, NI war noch nie billig, und der Devkit dafür wird sicher eine gute Stange Geld kosten.
ATN heist jetzt kommt einen Addresse. Im Ethernetprotokoll sind ja weitere Protokolle versteckt. Wenn du zum Beispiel eine WEB Seite aufrufst dann geschieht das ueber das HTTP Protokoll das ist wiederum in das TCP Protokoll verschachtelt. Das TCP wiederum im IP Protokoll und das wiederum im Ethernetprotokoll. Ich habe da schon selber unter TCP/IP eigene Protokolle aufgesetzt um mit Geraeten uebers I-Net zu kommunizieren. Man muss sich halt ein Protokoll einfallen lassen das die Ansprueche an die Geraetefernbedienung unterstuetzt. Das ist aber mehr eine Definitionsfrage b.z.w. Fleisarbeit. Wenn man dann die Verbindung zu einem Geraet aufgebaut hat braucht man ja nur noch die ASCII Befehle zu schicken und los gehts. Dann koennte man uebers I-Net deinen Geraetepark fernbedienen. Im PC setzt man dann nur noch auf die Netzwerksachen auf. Was dann kommt sind halt Anwenderprogramme. Also zum Beispiel die Fernsteuerung einens Skopes. Das Anwenderprogramm mit der Oberflaeche setzt seine Kommandos an das Netzwerkinterface des PC ab. Der geht ueber Ethernet/I-net an den Controllerchip. Der setzt dann auf IEEE488 um und fragt das Skope ab. So kann man dann auf dem PC ein virtuelles Skope nachbilden. Man muss die Aufgaben nur verteilen. Ralph Berres schrieb: > Wie man das aus dem Ethernetprodokoll auseinander klabüstert, habe ich > nie gerafft, sondern immer nur erstaunt zur Kenntnis genommen, das sowas > offensichtlich funktioniert. Das sieht auf dem ersten Blick da muss ich dir recht geben sowas von Kompliziert aus. Aber wenn es einmal funktioniert dann laeuft es recht zuverlaessig. Da habe ich frueher schon mehr Zeit mit der RS232 vertroedelt. Besonders da hat fast jeder Hersteller sein eigens Sueppchen gekocht.
Vielleicht sollte man zunächst mal überlegen was die Mehrheit der Nachbauer mit dem Gateway machen will. i.d.R. werden doch irgendwelche DVMS Zähler Scopes etc. ausgelesen werden. Ich hab einen ganzen Keller von HP Geräte, da drin werkelt wenn es hoch kommt mal ein 8048 oder ne UPI also Teile aus der Steinzeit. Meistens können die Geräte sowieso keine Daten in einer höhren Rate senden. Deshalb ist die ganze Diskussion um 100Mbit Ethernet, 32Bit Risc, Armcore sowieso "oversized". Das Gateway wartet doch eh auf die Daten von dem Gerät. Die Hochgeschwindigkeits IEEE-488 Anwendungen hat doch eh kein Bastler zuhause. Deshalb meine ich sollte man was einfaches bauen, wie von mir anfangs vorgeschlagen (möglichst wenig SMD). Was wo auch einige Leute mitmachen oder nachbauen.
hbloed schrieb: > Ich hab einen ganzen Keller > > von HP Geräte, da drin werkelt wenn es hoch kommt mal ein 8048 oder > > ne UPI also Teile aus der Steinzeit. Meistens können die Geräte > > sowieso keine Daten in einer höhren Rate senden. Naja gerade die älteren Geräte wenn Sie nicht gerade vor 1975 gebaut sind, verfügen in der Regel eine IEC-Bus Schnittstelle. Ich weis nicht ob es sich wirklich lohnt ein Interface zu bauen , welches die IEC-Bus schnittstelle in USB EThernet oder ganz gleich welche Norm umsetzt. In der Regel bekommt man relativ preiswert fertige IEC Bus karten für den PC von Agilent oder NI in der Bucht zu kaufen. Da lohnt der Aufwand meines Erachtens nicht, sowas selbst zu stricken. IECbus kabel bekommt man oft in der Bucht auch für 10 euro oder manchmal noch weniger. Treiber für die IECbuskarten gibt es meist beim Hersteller der Karten für alle möglichen Programmiersprachen. Ralph Berres
@ hbloed Du hast auch einen Keller voll von HP ? Na soviel ist es bei mir nicht. Aber wie ich schon geschrieben hatte. Bei den meisten Geraeten war das mit einer Handvoll TTL und einem langsamen Prozessor realisiert. Die ersten Homecomputer von Commodore hatte auch einen IEEE488 Bus fuer Drucker und Diskettenlaufwerke. >Deshalb ist die >ganze Diskussion um 100Mbit Ethernet, 32Bit Risc, Armcore sowieso >"oversized". Das mag schon sein, aber das ist heute alles in einem Chip mitdrin. Und die Teile kosten fast nichts warum soll man das den nicht nutzen. Um SMD wirst du heute kaum noch rumkommen. Bei mir wird zu fast 100% nur noch SMD eingesetzt.
Helmut Hatten die Commodore nicht eine serielle IEC Bus schnittstelle? Wie haben die das dann mit den ganzen Mehrdrahtbefehle realisiert? und wie haben die das Handshaking gemacht, das auch mehrere Geräte an einen Bus betrieben werden konnte? Aber ich mus zugeben das ich nicht der geborene Softwarespezialist bin. Ralph Berres
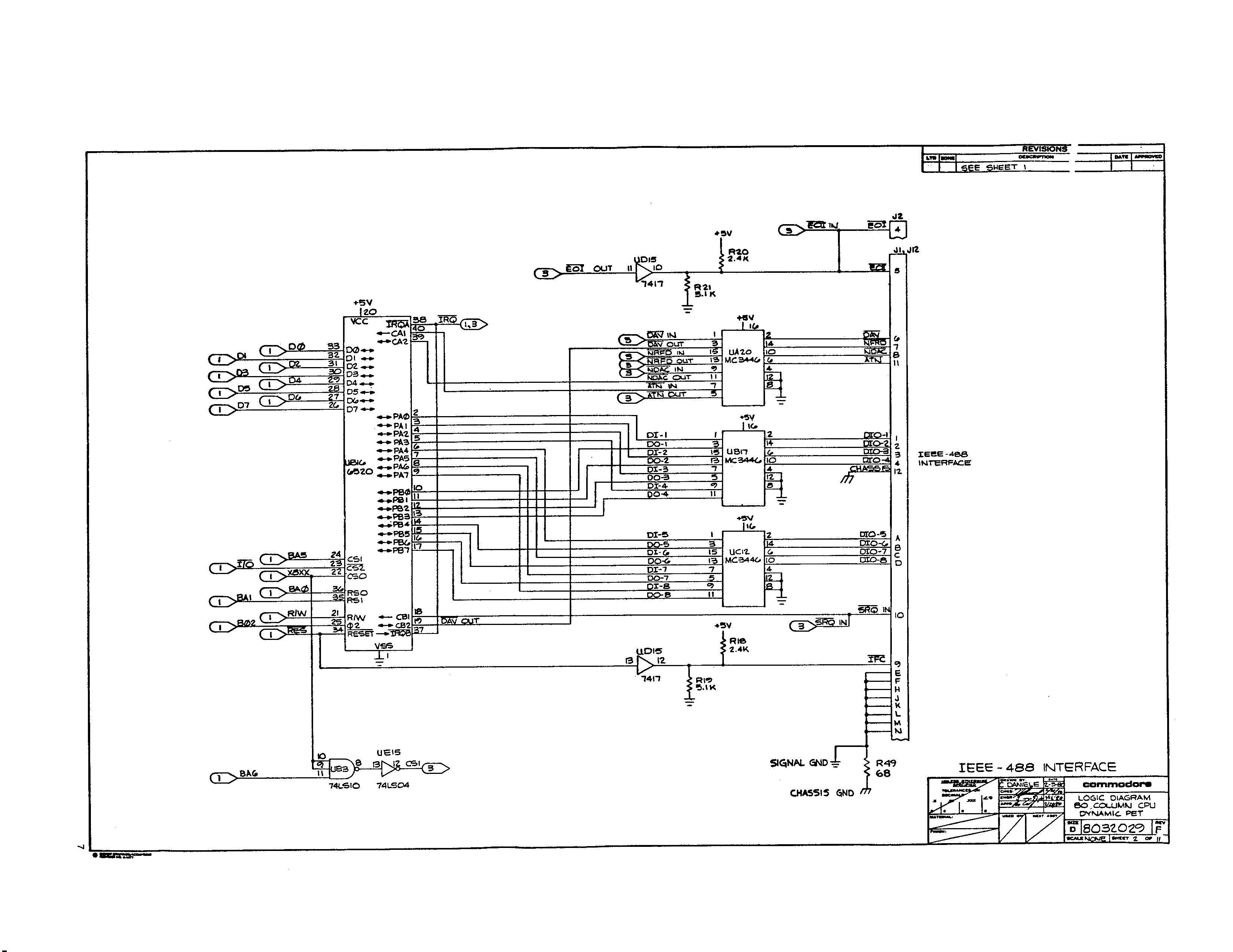
Ralph Berres schrieb: > Hatten die Commodore nicht eine serielle IEC Bus schnittstelle? Die kleinen Commodore C64 , VC20 hatten einen Seriellen IEC Bus. Die grossen CBM 2xxx,4xxx,8xxx hatten einen parallel IEC-BUS Ralph Berres schrieb: > Wie haben die das dann mit den ganzen Mehrdrahtbefehle realisiert? und > wie haben die das Handshaking gemacht, das auch mehrere Geräte an einen > Bus betrieben werden konnte? Wie gesagt das hatten die alles in Software realisiert. Als Schnittstelle hatten die nur die normalen IEC-Bus Treiber ICs (MC3446) und eine PIA 6520 zum Prozessor hin. Hier die IEC Bus Anbindung vom 2001 http://www.zimmers.net/anonftp/pub/cbm/schematics/computers/pet/2001/320130-1.gif Hier die vom 8032 http://www.zimmers.net/anonftp/pub/cbm/schematics/computers/pet/8032/8032029-02.gif Und hier die von einer 4040 Floppy http://www.zimmers.net/anonftp/pub/cbm/schematics/drives/old/4040/320806-1.gif Der Rest ist bei denen Software gewesen. Waere auch sonst zu teuer geworden.
Helmut Lenzen schrieb: >>Deshalb ist die >>ganze Diskussion um 100Mbit Ethernet, 32Bit Risc, Armcore sowieso >>"oversized". > > Das mag schon sein, aber das ist heute alles in einem Chip mitdrin. > Und die Teile kosten fast nichts warum soll man das den nicht nutzen. eben. > Um SMD wirst du heute kaum noch rumkommen. Bei mir wird zu fast 100% nur > noch SMD eingesetzt. Zumal der Originalvorschlag auch einen LQFP64 Controller beinhaltet, bei dem der übliche Bastler auch schon die weiße Fahne schwenkt. Da gleich was vernünftiges in aktueller Technik zu nehmen, kostet (a) eher weniger als mehr und ist (b) genauso viel bzw eher weniger Aufwand beim Nachbau, weil einfach weniger Komponenten benötigt werden. Für die von mir vorgeschlagenen TI/Luminary Cortex M3 Controller gibts fertige Bibliotheken für die Peripherie (http://focus.ti.com/mcu/docs/mculuminarymodules.tsp?sectionId=625&tabId=2494&familyId=1755) und IP-Stacks. Ist also auch alles da. Die GPIOs sind 5V-tolerant, d.h. die 75160/161 Treiber können direkt angeklemmt werden. Wieso dann noch was schlechteres nehmen? Nur, weil man es nicht kennt und nicht kennen lernen will? fchk
Hier noch einer mit 75160/161 Treibern http://www.zimmers.net/anonftp/pub/cbm/schematics/computers/b/4256041-10of15.gif
Frank K. schrieb: > Für die von mir vorgeschlagenen TI/Luminary Cortex M3 Controller gibts > fertige Bibliotheken für die Peripherie > (http://focus.ti.com/mcu/docs/mculuminarymodules.ts...) > und IP-Stacks. Ist also auch alles da. > > Die GPIOs sind 5V-tolerant, d.h. die 75160/161 Treiber können direkt > angeklemmt werden. So seh ich das auch. So in etwa saehe auch meine Schaltung aus. Die Teile von TI sind nicht schlecht. Hatte letztens mit dem LM3S8938 ein Testboard aufgebaut um damit mal rumzuspielen. Da hatte ich fast jede Schnittstelle mal rausgefuehrt. Mit ein bisschen weglassen / anders anschliessen koennte man das Teil dafuer schon fast nehmen.
hbloed schrieb: > Hallo Leute! > > Ich würde gerne mal ein neues HW- und SW- Projekt lostreten. > Ein Gateway mit folgenden Daten: Finde ich eine gute Idee, lass dich bloß von der "das gibt es alles schon" Fraktion nicht entmutigen. Die gibt es immer und überall. > Hardware: > > ATMega90CAN128 > ENC28J60 Ethernet Controller > IEEE-488 via Ports mit Bitbanging > Galv. isolierter CAN > Schaltregler Naja, da würde ich dann doch sagen das eventuell ein Controller mit Ethernet direkt auf dem Board besser ist. Evtl noch eine FPGA Option für "Realtime". Das Kriterium "kann bei Farnell nicht bestellen" ist nun wirklich das geringste Problem. > > Software: > > Treiber für Ethernet TCPIP > Treiber für IEEE-4888 > Treiber für CANOpen Da möchte ich dann doch eine kleine Kritik anbringen. Das ist bei so einem Projekt selbstverständlich und in der Hierarchie low level . Features wären meiner Meinung nach z.B. 3 Way bridge (CAN - IP - IEC) Loadable sequencer engines (.txt files) for IEEE and CAN Devices 3 Bus Realtime Trigger 3 Bus Monitoring Alles als Idee und Schnellschuss.
Ralph Berres schrieb: > Helmut Lenzen schrieb: >> Man koennte alles in >> >> einen Cortex Prozessor von TI unterbringen (Ethernet , CAN ,RS232) und >> >> den IEEE488 an den Port per Software emulieren. > > Unterschätze den IEC-Bus nicht. Was der Controller alles bewältigen muss > ist nicht von schlechten Eltern. Sicher kann man ein paar wenige > Funktionen die Software selbst schreiben, aber schon das drei Draht > handshaking ist nicht ohne. Wenn man dann noch die ganzen Gerätebefehle > implementieren will ist das schon eine Herausforderung. Sicher auch für > einen erfahrenen Programmierer wie du es glaube ich bist. > Nicht umsonst hat es eine ganze Reihe spezieller IEC-Bus Controller > gegeben, die einen das alles abgenommen hat. Bei uns in der Firma haben letztens 3 Praktikanten einen GPIB Controller mit PSoC Controller komplett in SW realisiert. Und das waren welche die vorher noch nie C Programmiert haben. Hab denen natürlich ein wenig weiter geholfen, aber sooo kompliziert war das nicht. Wichtig war nur was genaueres über die GPIB Funktionen zu finden. Ohne ein Buch (IEC - Bus / Anton Piotrowski) wäre das wirklich schwierig geworden. Ansonsten gibt es hier auch schon ein Projekt für AVR: http://spurtikus.de/basteln/gpib.html
Ich hätte jetzt erwartet dass von den TI-Fans mal was kommt. Aber scheinbar ist das hier nur die übliche Helikoptertaktik die ich auch von der Arbeit kenne: Überall seinen Senf dazugeben, alles besserwissen, alles zerreden und sich dann aus dem Staub machen.
Also von mir ist schon ein Schaltplan gekommen. Da braechte man nur einen Port einen IEEE488 Treiber anzuschliessen. Allerdings habe ich noch andere Projekte laufen womit ich meine Broetchen verdiene und die gehen vor. @hbl Anstatt zu moppern kannst du ja selber aktiv werden.
Ich finde das natürlich toll dass du keine Zeit hast. Ich frage mich warum Du hier Schaltpläne postest die mit dem Projekt nix zu tun haben und dann noch alles zerredest, anschliessend kommt nichts mehr. Schaltpläne an die man irgendwas anschliessen kann habe ich genug. Ich hätte jetzt wirklich erwartet dass ein Dynamiker wie Du, der sofort Schaltpläne postet das Projet übernimmt und in kürzester Zeit beendet. Ich habe natürlich was gemacht: Mein Mega128demoboard mit den 75160,75161 verbunden. Eine Treiber Software gibt es auch schon (z.Zt. via RS232) Ich kann schon mit meinem HP-Netzwerkanalystor, einem VektorSignalgenerator und meinem Scope reden. Nur ein HPIB Extender zickt noch. Als nächstes wollte ich ein Analysetool machen das Board soll einfach die Kommunikation mitschreiben. Ob ich das ganze aber hier veröffentliche weiss ich noch nicht. Ich verhandele gerade mit einem Funkmaganzin darüber. Ich habe ja wie ich hier erfahren musste einen "begrenzten Horizont". Das ganze wird auch wenn es noch so schön funktioniert wahrscheinlich nur von den Besserwissern zerredet.
Bitte melde dich an um einen Beitrag zu schreiben. Anmeldung ist kostenlos und dauert nur eine Minute.
Bestehender Account
Schon ein Account bei Google/GoogleMail? Keine Anmeldung erforderlich!
Mit Google-Account einloggen
Mit Google-Account einloggen
Noch kein Account? Hier anmelden.
