Hallo zusammen, ich stehe vor folgendem Problem, was mich als Nicht-Elektroniker derzeit irgendwie überfordert :-) Ich möchte 8 MTS103 (Miniaturschalter, gibt es recht günstig bei Pollin) als Eingang in einen AVR (Tiny461) einlesen. Dabei nur 2 definierte Zustände abzufragen ist recht einfach, da jeweils die Aussenpins auf den mittleren Pin geschalten werden. Mit 5V und 0V auf den Aussenpins lässt sich das eindeutig detektieren. Nun muss ich aber auch die Mittelstellung eindeutig erkennen. Meine Idee war an die jeweils mittleren Pins über einen Spannungsteiler aus 2 Widerständen á 10k 2,5V zu legen, und dann per ADC auszulesen. Funktioniert das ohne dass es da Kurzschlüsse gibt oder hat noch jemand eine bessere Idee?
Tobias B. schrieb: > Funktioniert das ohne dass es da Kurzschlüsse gibt oder hat noch jemand > eine bessere Idee? Wo soll da ein Kurzschluss auftreten? Mal die mal den Schaltplan auf. Einen 10-Bit ADC dafür zu verwenden, ist großzügig, aber Perlen vor die Säue. Funktionieren wird es und wenn du die Eingänge sowieso frei hast, spricht nichts dagegen. Du kannst natürlich auch mehr als einen Schalter über passende Widerstände an einen EIngang hängen und mehr Spannungspegel auswerten.
Die ADC Pins sind so oder so alle frei. Insofern Perlen vor die Säue ja, aber nicht so schlimm :-) Ich versuch mal morgen einen Schaltplan zu skizzieren.
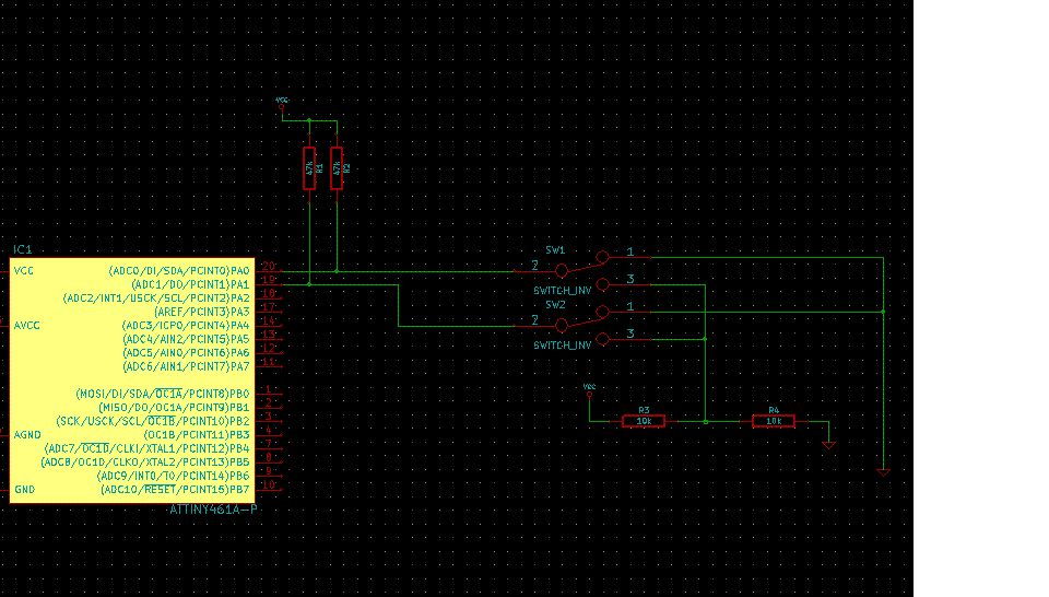
Ich hab jetzt mal einen provisorischen Schaltplan gemalt. Die Schalter haben einen dritten Zustand (Schalter Mitte) wo nichts mit den ADC Pins verbunden ist. Da wirkt dann praktisch der Pullupwiderstand. Funktioniert das so?
Schalte gedanklich mal deine beiden Schalter auf die 3-Position und zeichne dir getrennt alle Widerstände auf, die dann wirksam werden. Du wirst merken, dass mit jedem zusätzlichen Schalter, der in der '3'-Position ist, der 'obere' Widerstand des Spannungsteilers immer größer wird. OK. Da es dir auf den exakten Spannungswert nicht ankommt und du im Prinzip nur wissen willst, ob der Eingang auf Vcc, auf GND oder irgendwo dazwischen liegt (natürlich mit einer kleinen Fehlertoleranz) wird das durchaus funktionieren, wenn du in der Programmierung nicht darauf bestehst, dass bei einem Schalter in '3'-Stellung die gemessene Spannung nicht Vcc/2 sein muss. PS: Man kann auch auf einem ADC Eingang die eingebauten Pullup Widerstände gezielt zu bzw. weg schalten.
Danke für das Feedback und ich muss doch nochmal ganz doof nachfragen. Es waren schon die internen Pullup Widerstände gedanklich angenommen, nur die lassen sich so schlecht in den Schaltplan malen :-) Also wenn ich das richtig verstanden habe, wirken die Widerstände R1 und R2 parallel zu R3. Um den Einfluss der Pullupwiderstände auf die resultierende Spannung am Spannungsteiler möglichst gering zu halten, müssten also R3 und R4 möglichst klein sein (z.B. nur 1k), richtig?
Bitte melde dich an um einen Beitrag zu schreiben. Anmeldung ist kostenlos und dauert nur eine Minute.
Bestehender Account
Schon ein Account bei Google/GoogleMail? Keine Anmeldung erforderlich!
Mit Google-Account einloggen
Mit Google-Account einloggen
Noch kein Account? Hier anmelden.
