Ich habe eine Frage an die Experten, die sich mit RAM auskennen. Wie bekommt man es technisch gelöst, dass ich 16 Stück 1bit Rambausteine durch 4 Stück 4bit Rambausteine ersetzen kann? Das Problem ist, dass die 1bit Bausteine 1 Data in und 1 Data out haben. Die 4bit Bausteine haben 4 In/Out kombiniert, aber zusätzlich den OE. Mit welcher Logik kann man das bewerkstelligen?
Patrick schrieb: > Mit welcher Logik kann man das bewerkstelligen? TriState-Treiber wie 74HC125, aber letztlich kommt es (überraschenderweise!) auf die exakte Anwendung an.
Patrick schrieb: > dass ich 16 Stück 1bit Rambausteine Auch ca. 1975 hatten Ram ICs bereits eine Typenbezeichnung. Nenne diese! Möglicherweise hast du dynamische Rams vorliegen, das braucht anderen Ansatz für Umbau. Oder stelle gleich vollständiges Schaltbild bzw. Link dazu ein. Sowie Sinn und Zweck deiner Baustelle.
Patrick schrieb: > Wie bekommt man es technisch gelöst, dass ich 16 Stück 1bit Rambausteine > durch 4 Stück 4bit Rambausteine ersetzen kann? > > Das Problem ist, dass die 1bit Bausteine 1 Data in und 1 Data out haben. > Die 4bit Bausteine haben 4 In/Out kombiniert, aber zusätzlich den OE. Das kommt vor allem auf die Schaltung an, in der die RAMs drin sitzen. Ein Datenbus ist ja idR. bidirektional, da kann man die 4-Bit RAMs direkt anschließen und braucht eher für die Variante mit einem Bit zusätzliche Tristate-Treiber. Also Butter bei die Fische!
Patrick schrieb: > Das Problem ist, dass die 1bit Bausteine 1 Data in und 1 Data out haben. Zur Zeit, als ich noch mit einzelnen D-Rams zu tun hatte, wurden bei den 1-Bit-Rams Din und Dout miteinander verbunden und bildeten so ein Din/out.
Patrick schrieb: > Wie bekommt man es technisch gelöst, dass ich 16 Stück 1bit Rambausteine > durch 4 Stück 4bit Rambausteine ersetzen kann? SRAM oder DRAM?
Patrick schrieb: > Wie bekommt man es technisch gelöst, dass ich 16 Stück 1bit Rambausteine > durch 4 Stück 4bit Rambausteine ersetzen kann? in dem man die 16 Leitungen aus den 4x 4bit RAMs an die 16 bit RAMS lötet hatte ich damals auch beim AtariST machen können, das OS und die MCU konnte mit beidem umgehen 1bit RAM und 4bit RAM und von 256KB (der ST260 wurde aber schon mit 512KB geliefert nur der Name zeigte noch was geplant war) bis 4MB mindestens, weiter habe ich meinen ST nicht ausgebaut
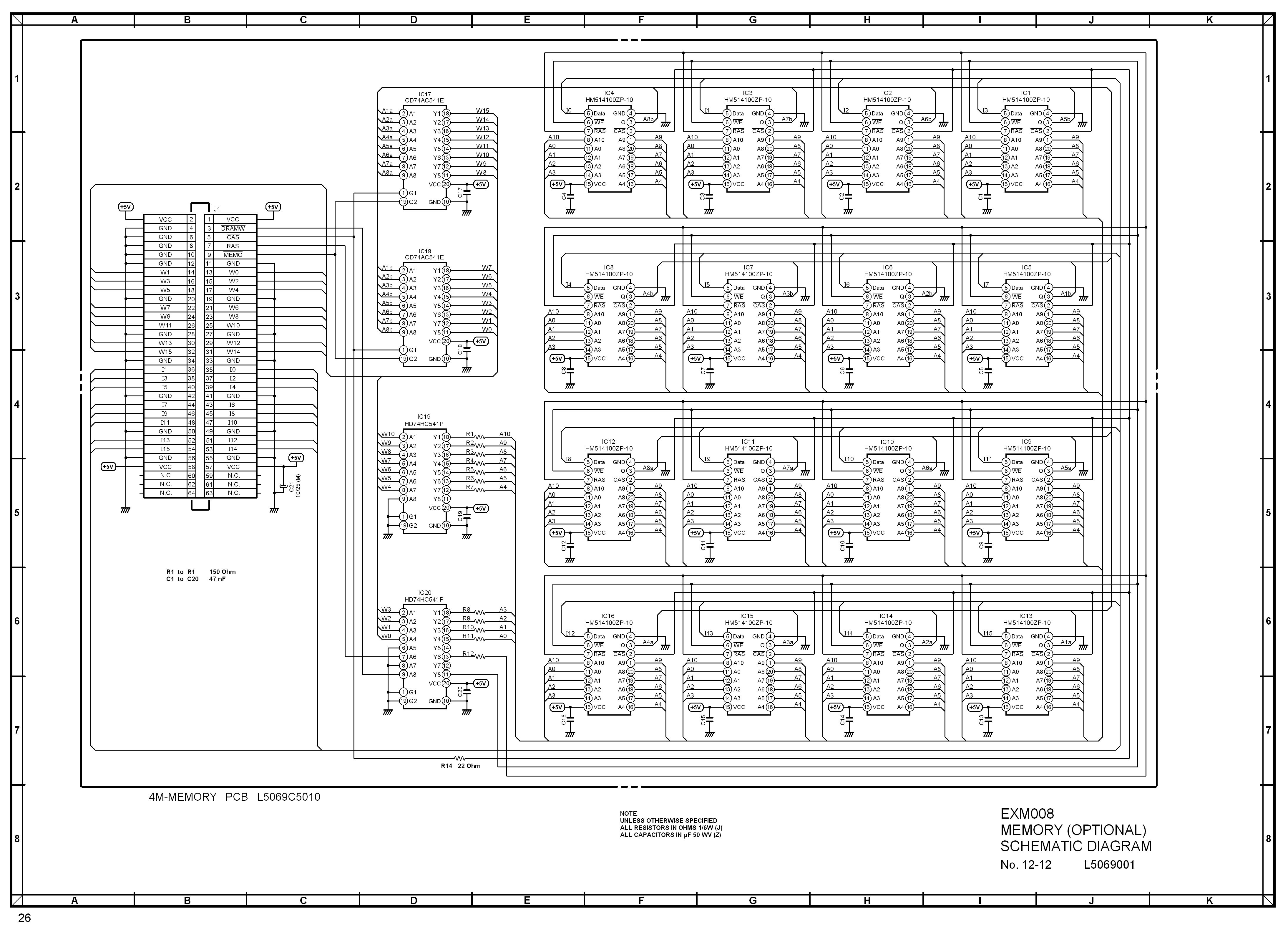
Es handelt sich um DRAM 514100. Das Schaltbild hänge ich mal mit dran. Diese Schaltung möchte ich so verändern, dass ich nur noch 4 Stück in 4bit habe, vermutlich 511400. In den 90ern habe ich ein Modul mit 4 Bausteinen gesehen. Es ist also möglich. Nur bin ich nicht so bewandert, um dahinter zu steigen.
Patrick schrieb: > Page_26_-_EXM008_Memory_Schematic.bmp > 6,6 MB Sooh schwer? Wichtige Regeln - erst lesen, dann posten! Zeichnungen und Screenshots im PNG- oder GIF-Format hochladen. Siehe Bildformate. Patrick schrieb: > Es handelt sich um DRAM 514100. Schön, dass wir das noch erfahren dürfen. Das Ding besitzt nicht 1 Bit, sondern 4 MBit x 1
:
Bearbeitet durch User
Patrick schrieb: > Ich habe eine Frage an die Experten, die sich mit RAM auskennen. > > Wie bekommt man es technisch gelöst, dass ich 16 Stück 1bit Rambausteine > durch 4 Stück 4bit Rambausteine ersetzen kann? Indem 4 ICs mit ein Bit durch ein IC mit 4 Bit parallel ersetzt werden. > Das Problem ist, dass die 1bit Bausteine 1 Data in und 1 Data out haben. Ja und? Die 4 Bit RAMs haben das auch, allerdings an einem Pin. Der MUX bzw. Tristate-Ausgangstreiber ist im IC. > Die 4bit Bausteine haben 4 In/Out kombiniert, aber zusätzlich den OE. Klar, um zwischen Lesen und Schreiben am bidirektionalen Bus umschalten zu können. Das OE gab es aber schon vorher, brauchte dafür aber zusätzliche IC17 und IC18, welche die Datenausgänge der RAMs (Q, reine Ausgänge OHNE Tristate) auf den bidirektionalen Bus W0-W15 multiplexen. Die stecken in den 4 Bit RAMs. Das Steuersignal ist #MEMO (negiert). Ausgangsstufen Logik-ICs
Patrick schrieb: > Das Schaltbild hänge ich mal mit dran. Diese Schaltung möchte ich so > verändern, dass ich nur noch 4 Stück in 4bit habe, vermutlich 511400. Da das Interface J1 sowieso nur I<n> als gemeinsamen read/write Datenbus hat, ist der Umbau doch einfach, wenn man sie wegen der Treiberleistung nicht braucht entfallen die '541 die bisher Data und Q trennen. Es wird also einfacher Aber ob das Timing mit anderen Chips noch stimmt, müsste man überprüfen.
Michael B. schrieb: > Da das Interface J1 sowieso nur I<n> als gemeinsamen read/write Datenbus > hat, Falsch. I<n> sind die Ausgänge der CPU, die NUR an die Eingänge der RAMs gehen. An W<n> hängen über Tristate-Treiber die Datenausgänge der RAMs in Richtung CPU dran. Also ist W der bidirektionale Adress/Datenbus, denn dort hängen auch die Adressen dran und die gehen in die andere Richtung.
Falk B. schrieb: > Falsch. I<n> sind die Ausgänge der CPU, die NUR an die Eingänge der RAMs > gehen. An W<n> hängen über Tristate-Treiber die Datenausgänge der RAMs > in Richtung CPU dran. Also ist W der bidirektionale Adress/Datenbus, > denn dort hängen auch die Adressen dran und die gehen in die andere > Richtung. Richtig!
Patrick schrieb: > Könnte jemand eine Skizze machen und hochladen, wie das aussehen könnte? Siehe Anhang. IC19 und IC20 in deinem Bild sind nur Treiber, um die Ausgänge der CPU elektrisch zu entlasten, logisch haben sie keine Funktion, weil immer aktiv.
Rüdiger B. schrieb: > Und wie sieht es mit dem Refresh aus ? Der ist identisch, denn es sind ja praktisch nur vier 1 BIT DRAMs in einem 4 Bit IC zusammengefasst. Sprich, mehr Bitbreite aber gleiche Anzahl Reihen/Spalten RAS/CAS.
oder du empfindest dieses nach: M32S1 32 Megabyte memory for S1000 / S1100 https://www.firstpr.com.au/rwi/smem/ PS: ich überlege die ganze Zeit wie Robin Whittle hier das #CAS derjenigen Slots, in welchen er nicht steckt, zurückgewinnt?
H. H. schrieb: > Rüdiger B. schrieb: >> Ein 30poliger SIM Speicherriegel ? > > Die hatten nur 8 Bit Breite. auch die mit parity? https://en.wikipedia.org/wiki/SIMM The first variant of SIMMs has 30 pins and provides 8 bits of data (plus a 9th error-detection bit in parity SIMMs) ich weiß nun kommt wieder als Ausrede es sind trotzdem nur 8-bit breite auch wenn sie 9-bit haben
Ron-Hardy G. schrieb: > oder du empfindest dieses nach: M32S1 32 Megabyte memory for S1000 / > S1100 > https://www.firstpr.com.au/rwi/smem/ > > PS: ich überlege die ganze Zeit wie Robin Whittle hier das #CAS > derjenigen Slots, in welchen er nicht steckt, zurückgewinnt? Die Seite kenne ich. Er holt sich die Signale mit jeweils einem Kabel von den drei freien Slots im Sampler. So eine Karte habe ich für die S3000 Serie schon gebaut. Dort ist es auch so. Allerdings kann ich diese Architektur nicht auf den S1000 übertragen, weil sie anders ist. Bei einer 32MB Karte für den S1000 müssen drei Signale ebenfalls von den freien Slots geholt werden. Jetzt habe ich schon einiges an Input gelesen. Ich werde mal einen Testaufbau machen.
:
Bearbeitet durch User
Bitte melde dich an um einen Beitrag zu schreiben. Anmeldung ist kostenlos und dauert nur eine Minute.
Bestehender Account
Schon ein Account bei Google/GoogleMail? Keine Anmeldung erforderlich!
Mit Google-Account einloggen
Mit Google-Account einloggen
Noch kein Account? Hier anmelden.



