Tach, ich stehe vor einem riesen Problem: Ich muß eine +12 - 14V Spannung schalten (ca. 70mA), als "Schaltspannung" hab ich allerdings nur eine +5V Spannung zur Verfügung. Es kann leider kein Relais zum einsatz kommen, da auf der Platine "sehr wenig" platz vorhanden ist. Wer weiß Rat ? Vielen Dank schonmal!
wenns entkoppelt sein soll, schau Dir mal 'nen Optokoppler an, sonst könnt auch ein normaler Transistor hilfreich sein (NPN, 5V zum schalten mit Widerstand an die Basis, Last an Kollektor, Emitter auf GND)
also, transistor (npn) fällt flach. wenn ich an der basis +5v anliegen hab, dann kann ich damit auch max. +5v durchschalten und keine +12v... (!) mos-fet fällt ebenfalls flach, da mos-fets gegen masse geschaltet werden und nicht als "schalter" hier dienen können. werd mir gleich mal paar datenblätter von optokopplern anschauen, aber ich glaub da gibts das gleiche problem... ?
ich mal mal auf, was ich meine :) +12-14v - schalter - "bauteile" wichtig hierbei ist, daß ich nicht die masse schalten kann, sondern die +12v durchschalten muß.
Also ich will dich ja nicht beunruhigen, aber das siehst du komplett falsch. mit einem Vorwiederstand ca 4,7k übern Daumen gepeilt bekommst du deine 12V abzüglich der Kollektor-Emitter-Spannung auf jeden Fall geschalten. Mit einem BC 337 in Emitterschaltung klappt das Ganze garantiert.
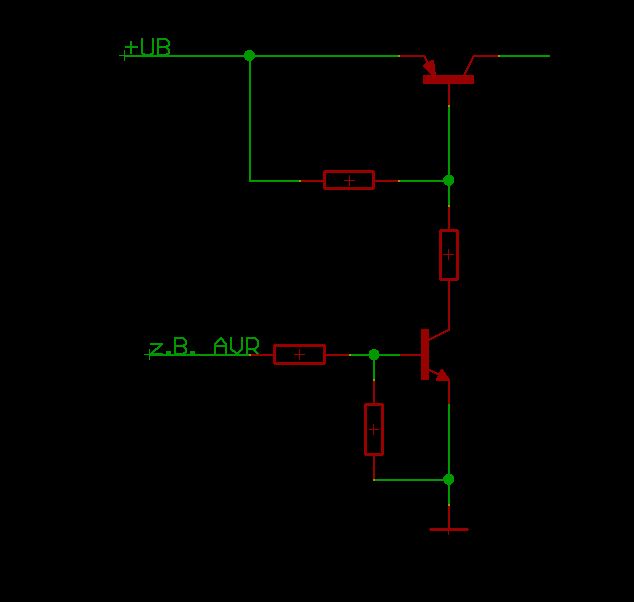
Anbei eine Standardschaltung zum Schalten der +B Spannung. Der PNP Transistor kann auch gegen ein P Channel Mosfet ersetzt werden. Nimmt man für den NPN Transistor ein BCR Typ (Logiktransistor) kann man sich den Basis- und BasisEmitterwiderstand sparen.
Mess mal bitte +UB und nachdem Transistor die +UB und poste diese mal in diesen Thread: Beitrag "Mit PNP verlustfrei 5V schalten?"
Julius wrote: > @Dirk: > > +UB = 12V ? > > wo liegt dann GND von der 12V Quelle? > > Mfg > Julius In der Zeichnung die oberste Linie: Von +UB gehts an den Transistor und rechts wieder raus. Von dort (rechts) gehts an + vom zu schaltenden Gerät (+ Anschluss vom Gerät) und vom - Anschluss am Gerät gehts weiter an GND. Und alle GND muessen natürlich miteinander verbunden sein. Sowohl die GND von der die Schaltspannung kommt, als auch die GND von dieser Schaltung als auch das GND vom Gerät.
Kann man dann 2 verschiedene Netzteile verwenden, oder muss ein Netzteil 5V und 12V bereitstellen? Mfg Julius
moin, du kannst auch 20 netzteile nehmen, wichtig ist das alle massenpotentiale verbunden sind, also überall GND verbinden, eine gnd-verbindung zuviel schadet nicht, eine zu wenig schon (ich sprech da aus erfahrung, einmal nicht aufgepasst und 30 euro lcd im eimer...) mfg Emperor_L0ser
Bitte melde dich an um einen Beitrag zu schreiben. Anmeldung ist kostenlos und dauert nur eine Minute.
  
  Bestehender Account
  
  
  
  Schon ein Account bei Google/GoogleMail? Keine Anmeldung erforderlich!
Mit Google-Account einloggen
Mit Google-Account einloggen
  Noch kein Account? Hier anmelden.
